Menu

KPR
FAQ
 
 
 

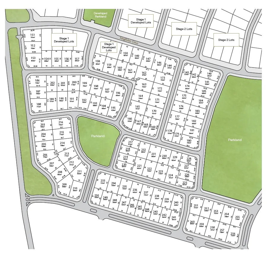
Lancelin South - VIMG

Rumah Di Western Australia, Australia

AUD$ 169 Ribu ~ AUD$ 618,5 Ribu

logo white circle

Tentang

Temukan Surga Tepi Pantai di Lancelin South

Selamat datang di Lancelin South, tempat di mana impian memiliki rumah tepi pantai menjadi kenyataan! Lancelin South terletak di pintu gerbang ke Turquoise Coast yang menakjubkan di Australia Barat, menjadikannya sebagai tempat bermain yang ideal bagi penduduk Perth. Hanya 90 menit berkendara dari pusat kota Perth, Lancelin menawarkan suasana liburan yang santai dan menarik bagi pengunjung dari berbagai penjuru.Dengan meningkatnya nilai pada kualitas hidup, keberlanjutan, dan keterjangkauan, Lancelin South dirancang untuk memenuhi kebutuhan gaya hidup modern. Proyek ini memberikan kesempatan langka untuk tinggal di surga pesisir yang dicintai, dengan rencana investasi signifikan yang akan menciptakan pusat sub-regional yang menarik dan unik. Masa depan Lancelin terlihat sangat cerah, menjadikannya pilihan yang menarik bagi mereka yang mencari tempat tinggal atau investasi properti di dekat pantai.

Kenapa Memilih Lancelin South?

Bayangkan bangun setiap pagi dengan suara deburan ombak dan pemandangan matahari terbit yang memukau. Di Lancelin South, setiap hari adalah kesempatan baru untuk menikmati keindahan alam. Dengan akses langsung ke pantai yang bersih dan berbagai atraksi lokal, Anda akan merasakan pengalaman hidup yang tak tertandingi.

Spesifikasi Proyek

  • Lokasi: Strategis di jantung Lancelin, Australia
  • Tipe Properti: Pilihan rumah tinggal atau tempat liburan pribadi
  • Fasilitas: Akses mudah ke area rekreasi, taman bermain, dan fasilitas lokal lainnya
  • Aksesibilitas: Hanya beberapa jam dari Perth, ideal untuk liburan akhir pekan yang menyegarkan

Simulasi KPR

tahun

Hasil Simulasi KPR

Harga Properti (Rp)

Jumlah Angsuran/Bulan

foto-agen

JUWITA (JWS)

Brighton Masterpiece

Greenville, Jakarta Barat


foto-agen

WIWIEK (WWK)

Brighton Amazing

Mulyosari, Surabaya


foto-agen

SOPHIE (ELWW)

Brighton One

CBD Sudirman, Surabaya

Dengan klik tombol kontak, Pengguna setuju dengan Syarat Pengguna dan Kebijakan Privasi

Properti Lainnya

Image more Le Vue - Sinagra - Jardim

Rumah di Western Australia

Le Vue Sinagra: Hunian Eksklusif di Lokasi StrategisTemukan kehidupan yang penuh kenyamanan di Le Vue Sinagra, sebuah perumahan premium di kawasan berkembang di Perth. Dengan desain modern, fasilitas lengkap, dan lokasi strategis, hunian ini menjadi pilihan sempurna bagi Anda yang mencari kehidupan mewah di tengah ketenangan alam.Peluang Investasi yang MenjanjikanKawasan Sinagra adalah daerah dengan perkembangan pesat, menjadikannya lokasi yang ideal untuk investasi properti. Nilai properti diproyeksikan terus meningkat, didukung oleh pembangunan infrastruktur dan fasilitas umum.Mengapa Memilih Le Vue Sinagra? Memberikan keseimbangan sempurna antara kehidupan urban dan kedamaian alam. Pilihan desain rumah yang fleksibel untuk memenuhi kebutuhan Anda. Dibangun oleh pengembang terpercaya dengan kualitas material terbaik. Jangan Lewatkan Kesempatan Ini!Segera miliki rumah impian Anda di Le Vue Sinagra. Jadwalkan kunjungan untuk melihat langsung keindahan dan kenyamanan yang ditawarkan. Hubungi tim kami hari ini untuk informasi lebih lanjut.Le Vue Sinagra – Kehidupan Mewah di Lokasi Strategis.

Image more Cowle Collective - West Perth - Palazzo Homes

Rumah di Western Australia

Cowle Collective: Rumah Impian dengan Sentuhan Modern di PerthSelamat datang di Cowle Collective, sebuah koleksi hunian yang dirancang dengan gaya modern, material berkualitas, dan efisiensi tinggi. Berlokasi strategis di kawasan premium Perth, Cowle Collective menghadirkan hunian sempurna yang memadukan kenyamanan dengan kemewahan.Keunggulan Cowle Collective Desain Modern dan Berkelas Memadukan gaya kontemporer dengan fungsi optimal. Material premium yang tahan lama dan ramah lingkungan. Lokasi Strategis Dekat dengan pusat perbelanjaan, sekolah, dan akses transportasi. Kawasan tenang dengan akses cepat ke pusat kota Perth. Ruang Hidup yang Nyaman Tata ruang luas dan efisien. Cahaya alami berlimpah untuk kenyamanan maksimal. Fasilitas Unggulan Lingkungan hijau dengan aksesibilitas tinggi. Sistem keamanan modern dan ruang parkir luas. Dengan kualitas yang terjamin dan potensi investasi menjanjikan, Cowle Collective adalah pilihan sempurna untuk keluarga modern.

Image more Allamanda Vista - Helena Valley - Jardim

Rumah di Western Australia

Allamanda Vista: Hunian Mewah di Helena ValleySelamat datang di Allamanda Vista, sebuah komunitas perumahan eksklusif yang menawarkan kenyamanan hidup modern di tengah keindahan alam Helena Valley. Dengan desain premium, lokasi strategis, dan fasilitas terbaik, Allamanda Vista menghadirkan standar hidup baru yang sempurna untuk keluarga Anda.Keunggulan Allamanda Vista Desain Hunian Modern dan Fungsional Rumah dengan 4 kamar tidur luas dan 2 kamar mandi mewah. Garasi 2 mobil, ideal untuk kebutuhan keluarga modern. Dapur open-plan dengan material berkualitas tinggi dan peralatan canggih. Lingkungan Hijau dan Nyaman Terletak di kawasan yang tenang dengan udara segar Helena Valley. Dikelilingi taman dan jalur pejalan kaki untuk gaya hidup aktif. Lokasi Strategis Dekat dengan sekolah, pusat perbelanjaan, dan fasilitas kesehatan. Akses mudah ke jalan utama dan pusat kota Perth. Fasilitas Premium Area bermain anak yang aman dan ramah keluarga. Infrastruktur modern yang mendukung gaya hidup masa kini. Investasi yang Bernilai TinggiHelena Valley adalah kawasan yang terus berkembang dengan potensi investasi properti yang menjanjikan. Harga kompetitif Allamanda Vista memberikan peluang emas bagi Anda untuk memiliki rumah di lokasi premium ini.Mengapa Harus Memilih Allamanda Vista? Hunian berkualitas tinggi dengan perhatian pada detail. Lokasi yang menyatukan kenyamanan kota dan ketenangan alam. Pengembang terpercaya dengan rekam jejak memuaskan. Kesempatan Terbatas – Miliki Sekarang!Dengan permintaan yang tinggi, unit di Allamanda Vista sangat terbatas. Jadwalkan kunjungan Anda hari ini untuk melihat langsung rumah impian Anda.Hubungi kami untuk informasi lebih lanjut. Allamanda Vista – Hidup Nyaman di Helena Valley.

Image more La Belle - Bellevue - Jardim

Rumah di Western Australia

La Belle Bellevue: Rumah Impian di Lokasi PremiumSelamat datang di La Belle Bellevue, kawasan perumahan premium yang dirancang untuk menghadirkan gaya hidup nyaman dan elegan di Perth Hills. Dengan lokasi strategis, desain rumah modern, dan lingkungan yang indah, La Belle Bellevue menawarkan pengalaman hunian yang tak tertandingi.Peluang Investasi yang CerdasLa Belle Bellevue adalah pilihan tepat untuk mereka yang ingin berinvestasi di kawasan dengan nilai properti yang terus meningkat. Lokasinya yang berkembang pesat menjadikannya prospek investasi yang menjanjikan.Mengapa Memilih La Belle Bellevue? Kehidupan modern yang menyatu dengan keindahan alam. Dibangun oleh pengembang terpercaya dengan perhatian pada kualitas dan detail. Memberikan keseimbangan antara ketenangan dan aksesibilitas. Miliki Sekarang!Kesempatan untuk memiliki rumah di La Belle Bellevue terbatas! Jadwalkan kunjungan ke lokasi kami dan temukan hunian yang dirancang untuk kenyamanan dan kemewahan Anda.Hubungi kami hari ini untuk informasi lebih lanjut. La Belle Bellevue – Hidup Elegan di Lokasi Strategis.