Menu

KPR
FAQ
 
 
 
Rumah

JUAL TLOGOSARI WETAN

Rp 400 Juta

RUMAH PESAN BANGUN DOLOG TLOGOSARI WETAN BEBAS BANJIR

 

Detail Properti

Transaksi

Jual

Kamar Tidur

2

Kamar Mandi

1

Luas Tanah

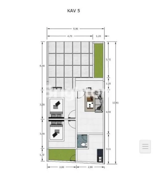
45 m2

Luas Bangunan

74 m2

Tipe Properti

Rumah

Alamat

TLOGOSARI WETAN

Lokasi

Jawa Tengah, Semarang, Pedurungan

Listrik

1300 Watt

Sertifikat

SHM

Hadap

Timur

Group

Primary

Furnish

-

Ada Garasi

Ya

Terdaftar Pada

02 September 2025

ID Listing

021825-UNSR00028

 

Keterangan

DIJUAL!!
RUMAH PESAN BANGUN
DOLOG TLOGOSARI WETAN BEBAS BANJIR

Perumahan dengan desain Limasan modern, total ada 7 unit, lokasi berada di lingkungan yang sudah terbentuk, dekat dengan fasum publik.

Spesifikasi
- SHM READY
- Type 45
- Luas tanah mulai dari 74 - 88m2
- 2kt,1km
- Listrik 1300watt
- Air sumur bor
- Pondasi cakar ayam, batu belah
- Tembok bata merah
- Pasir Muntilan
- Plafon drop ceiling
- Lantai granit
- Closet duduk + shower
- Carport
- Dapur

Selling point
- SHM sudah split
- Lokasi bebas banjir, makam dan sutet
- Bangunan spek premium

Harga 400jt- an, konsep pembayaran cash / softcash saja.

 

Simulasi Cicilan KPR

Harga Properti (Rp)

Rp 400 Juta

Uang Muka (Rp)

%

Jangka Waktu

tahun

Suku Bunga

%

Jumlah Angsuran

per bulan

foto-agen

MARYATINING (FFZM)

Brighton Unity

Dr. Cipto - Semarang

Dengan klik tombol kontak, Pengguna setuju dengan Syarat Pengguna dan Kebijakan Privasi


Dengan klik tombol kontak, Pengguna setuju dengan Syarat Pengguna dan Kebijakan Privasi

Tertarik dengan Properti Ini?

Agent Image

MARYATINING (FFZM)

Siap Membantu!

Butuh bantuan jual, sewa, cari properti? Brighton siap membantu

Hubungi Customer Service Brigita