Menu

KPR
FAQ
 
 
 
Gedung

JUAL TB SIMATUPANG

Rp 450 Miliar

GEDUNG PERKANTORAN DAN HOTEL STRATEGIS TB SIMATUPANG JAKARTA SELATAN

 

Detail Properti

Transaksi

Jual

Kamar Tidur

117

Kamar Mandi

117

Luas Tanah

4282 m2

Luas Bangunan

23548 m2

Tipe Properti

Gedung

Alamat

TB SIMATUPANG

Lokasi

DKI Jakarta, Jakarta Selatan, TB Simatupang

Listrik

66000 Watt

Sertifikat

Lain-lain

Hadap

Utara

Group

Secondary

Furnish

-

Ada Garasi

Ya

Terdaftar Pada

18 November 2025

ID Listing

182225-CPJS00021

 

Keterangan

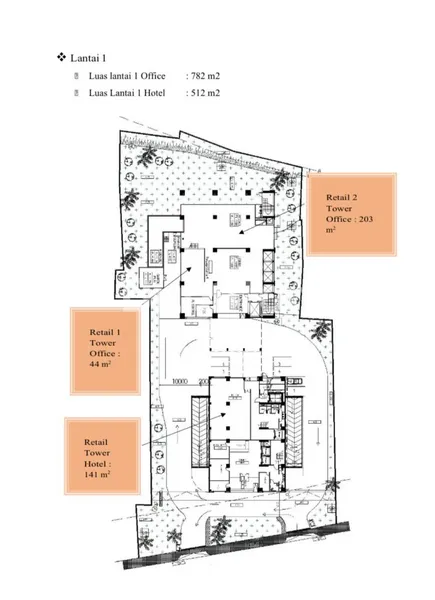
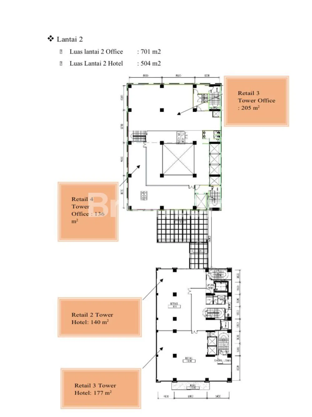
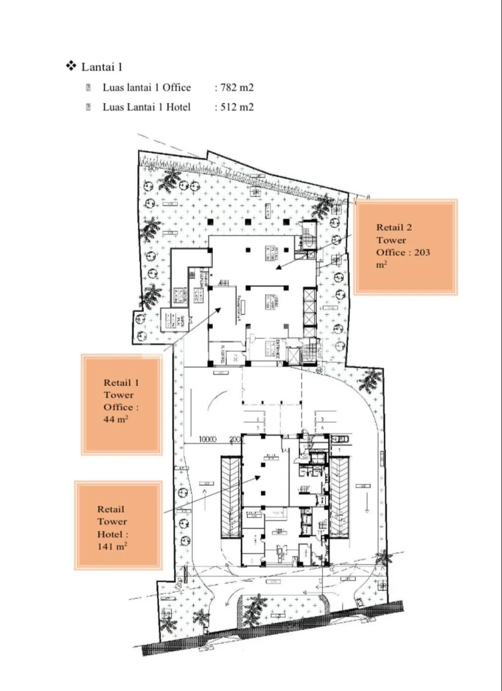
SPESIFIKASI :
- LUAS TANAH 4.282 M2

- LUAS BANGUNAN 23.548 M2 :
LUAS OFFICE 11.264 M2
LUAS HOTEL 6.034 M2
LUAS BASEMENT 5.350 M2

- TERDAPAT 2 TOWER YAITU :
TOWER PERKANTORAN 17 LANTAI
TOWER HOTEL 14 LANTAI (117 KAMAR)

- TOTAL PARKIR 170 MOBIL :
BASEMENT 154 MOBIL
HALAMAN 16 MOBIL

HARGA 450 MILYAR NEGO

KEUNGGULAN LOKASI :
- LOKASI SANGAT STRATEGIS DI JALAN RAYA TB SIMATUPANG
- MERUPAKAN KAWASAN BISNIS DAN KOMERSIAL
- MERUPAKAN KAWASAN PREMIUM DI JAKARTA SELATAN
- INFRASTRUKTUR TRANSPORTASI LENGKAP SEPERTI TOL DAN JALUR MRT

 

Simulasi Cicilan KPR

Harga Properti (Rp)

Rp 450 Miliar

Uang Muka (Rp)

%

Jangka Waktu

tahun

Suku Bunga

%

Jumlah Angsuran

per bulan

foto-agen

LIA MW (CTHI)

Brighton Champion

Pondok Indah - Jakarta Selatan

Dengan klik tombol kontak, Pengguna setuju dengan Syarat Pengguna dan Kebijakan Privasi


Dengan klik tombol kontak, Pengguna setuju dengan Syarat Pengguna dan Kebijakan Privasi

Tertarik dengan Properti Ini?

Agent Image

LIA MW (CTHI)

Siap Membantu!

Butuh bantuan jual, sewa, cari properti? Brighton siap membantu

Hubungi Customer Service Brigita