Menu

KPR
FAQ
 
 
 
Rumah Kos

JUAL TANJUNG DUREN

Rp 3,35 Miliar

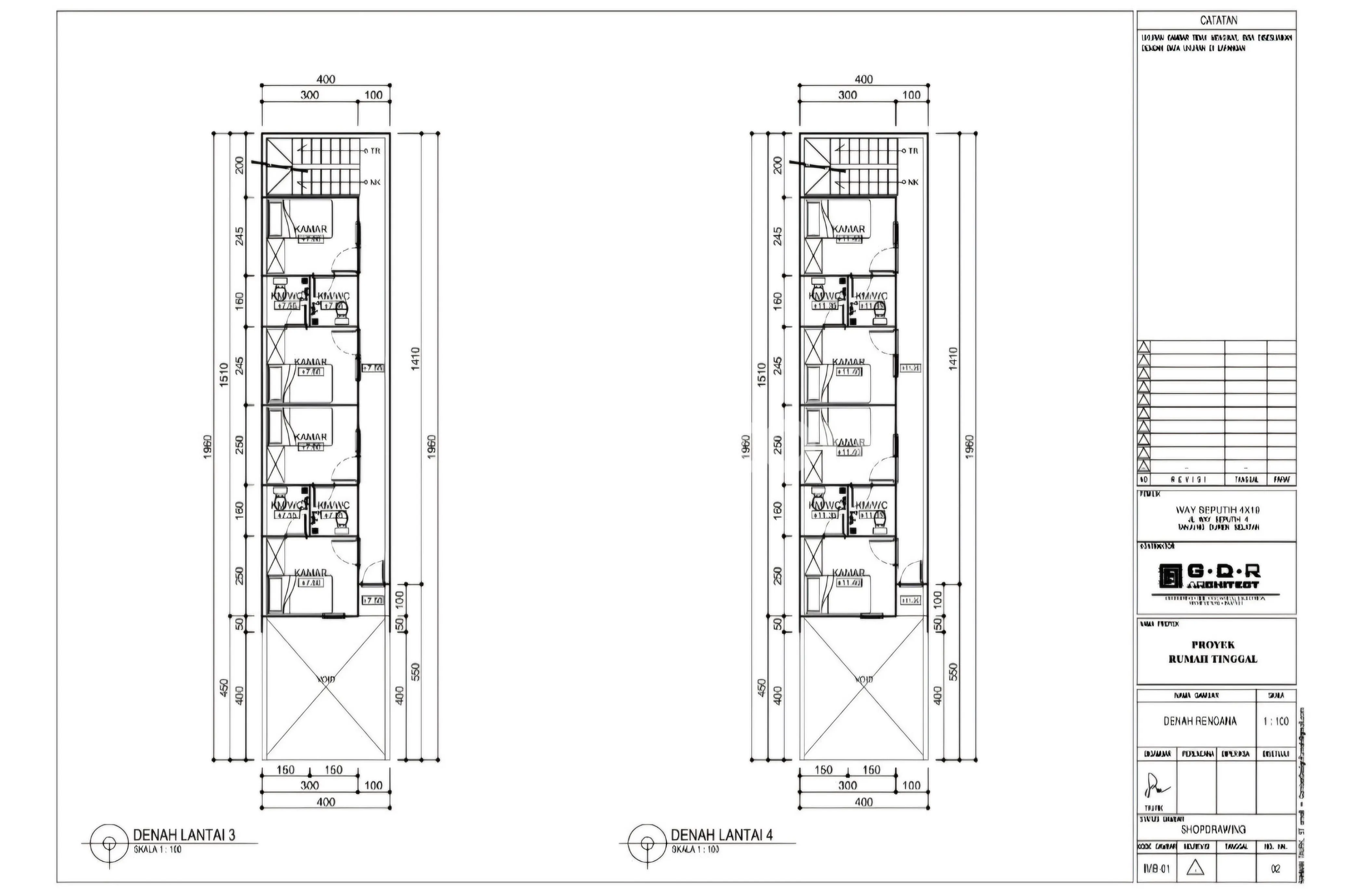
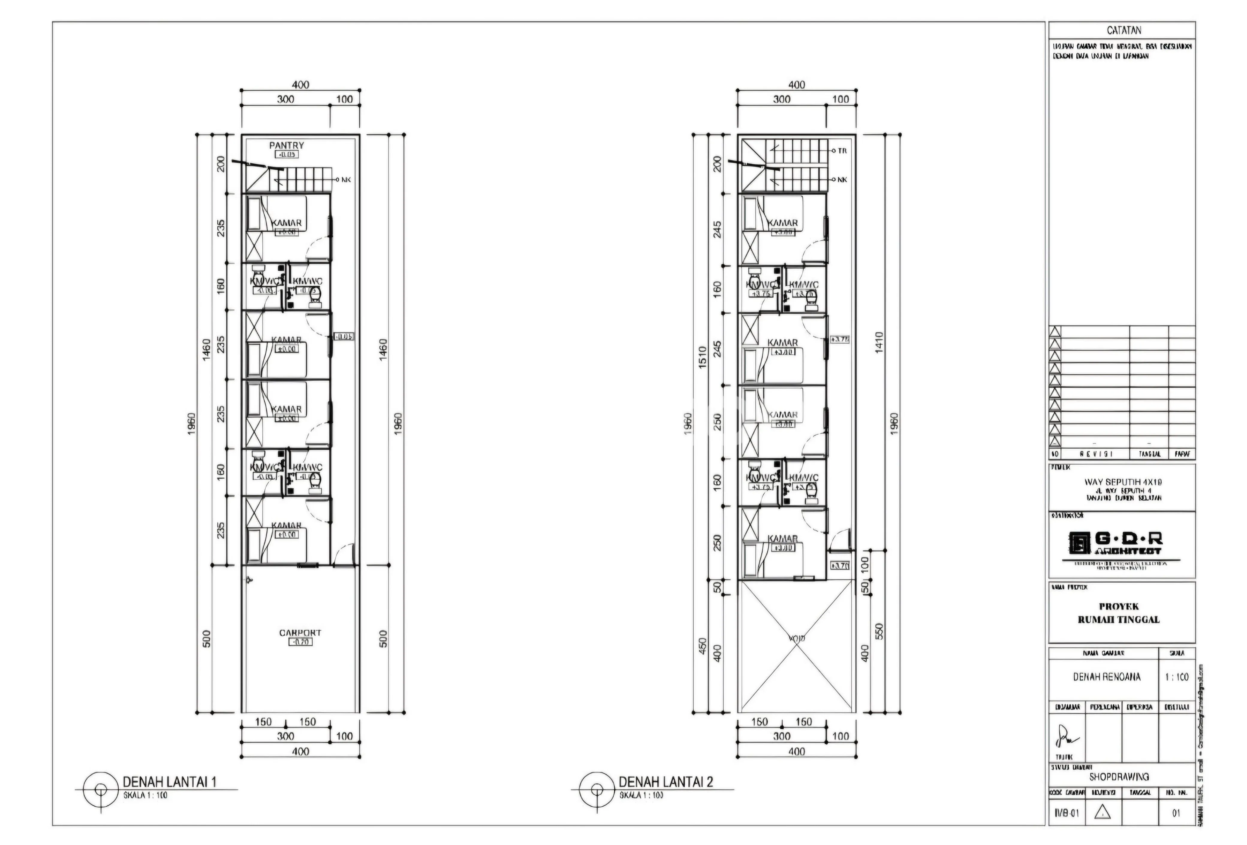
RUMAH KOST INDENT TANJUNG DUREN 3 LANTAI 16 KAMAR TIDUR

 

Detail Properti

Transaksi

Jual

Kamar Tidur

16

Kamar Mandi

16

Luas Tanah

78.4 m2

Luas Bangunan

252 m2

Tipe Properti

Rumah Kos

Alamat

TANJUNG DUREN

Lokasi

DKI Jakarta, Jakarta Barat, Tanjung Duren

Listrik

1300 Watt

Sertifikat

SHM

Hadap

Utara

Group

Primary

Furnish

Non-furnished

Ada Garasi

Ya

Terdaftar Pada

22 Desember 2025

ID Listing

222425-BRTD00021

 

Keterangan

RUMAH KOST INDENT TANJUNG DUREN 3 LANTAI 16 KAMAR TIDUR
BEBAS BANJIR

KEUNGGULAN LOKASI :
1. PUSAT PERBELANJAAN SEPERTI CIPUTRA MALL, NEO SOHO, CENTRAL PARK, TAMAN ANGGREK, PASAR KOPRO DAN PASAR GRENVIL.
2. PENDIDIKAN SEPERTI UKRIDA, UNTAR, TRISAKTI, PODOMORO, IPEKA, YADIKA, ABDI SISWA DLL
3. RUMAH SAKIT SEPERTI ROYAL TARUMA, KEDOYA DAN SILOAM.
4. BANYAK TEMPAT KULINER SELAIN MALL DI TANJUNG DUREN, GRENVIL DAN TAMAN RATU.
5. AKSES TRANSPORTASI SEPERTI DEKAT PINTU TOL DALAM KOTA DAN TRANSPORTASI UMUM LAINNYA.
6. BANYAK PERUMAHAN LAINNYA DISEKITAR TANJUNG DUREN SEPERTI GREENVILLE, TAMAN RATU, SUNRISE, GREEN GARDEN DAN KEDOYA.

SHM
ADA 2 TIPE :
1. HARGA Rp.3,350JUTA
LT 78,4m2 (4X19,6)
LB 252m2
KT 16
KM 16

2. HARGA Rp.6.750JUTA
LT 158m2 (8X19,6)
LB 500m2
KT 35+1
KM 35+1

PLN TOKEN 1.300 WATT PERKAMAR
PAM
HADAP UTARA
CARPORT 1 MOBIL
LEBAR JALAN BISA DILALUI 2 MOBIL LEGA

HARGA MASIH BISA NEGO HINGGA DEAL

 

Simulasi Cicilan KPR

Harga Properti (Rp)

Rp 3,35 Miliar

Uang Muka (Rp)

%

Jangka Waktu

tahun

Suku Bunga

%

Jumlah Angsuran

per bulan

foto-agen

IREN (WIC)

Brighton Akasia

Tanjung Duren - Jakarta Barat

Dengan klik tombol kontak, Pengguna setuju dengan Syarat Pengguna dan Kebijakan Privasi


Dengan klik tombol kontak, Pengguna setuju dengan Syarat Pengguna dan Kebijakan Privasi

Tertarik dengan Properti Ini?

Agent Image

IREN (WIC)

Siap Membantu!

Butuh bantuan jual, sewa, cari properti? Brighton siap membantu

Hubungi Customer Service Brigita