Menu

KPR
FAQ
 
 
 
Rumah

JUAL TANJUNG DUREN 5

Rp 2,75 Miliar

RUMAH BARU LOKASI STRATEGIS DI TANJUNG DUREN - SISA 4 UNIT

 

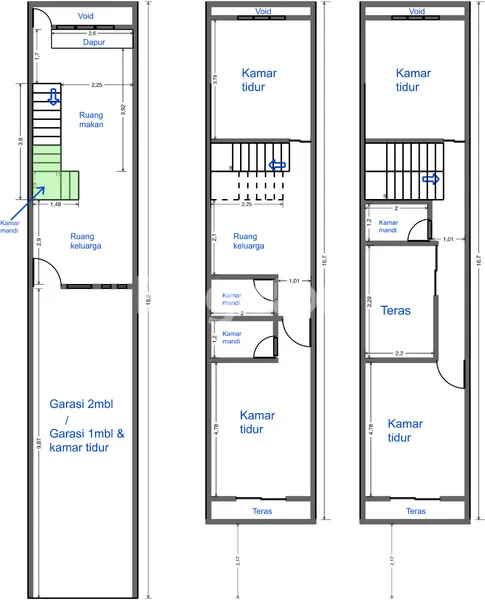
Detail Properti

Transaksi

Jual

Kamar Tidur

5

Kamar Mandi

4

Luas Tanah

67 m2

Luas Bangunan

183 m2

Tipe Properti

Rumah

Alamat

TANJUNG DUREN 5

Lokasi

DKI Jakarta, Jakarta Barat, Tanjung Duren

Listrik

2200 Watt

Sertifikat

SHM

Hadap

Utara

Group

Primary

Furnish

Semi-furnished

Ada Garasi

Ya

Terdaftar Pada

15 Desember 2025

ID Listing

202025-PSPH00005

 

Keterangan

Dijual Rumah Baru Indent di Tanjung Duren dengan Garasi 3 Mobil, ROW jalan 3 Mobil serta bahu jalan 4 Meter.
Harga Menarik dengan harga nego 2,750 Milyar ditambah PROMO.
Dp Langsung GRATIS:
-Upgrade Full Furnish di Lantai 1 (r.makan, r.keluarga, kitchen set, kulkas) Total Promo Senilai= 120 juta(+-20 item)
Hanya Berlaku untuk Indent Bulan ini!!
(bisa ubah denah jika beli sebelum rumah jadi dan Garansi kerusakan bangunan sampai ½ tahun)

 

Simulasi Cicilan KPR

Harga Properti (Rp)

Rp 2,75 Miliar

Uang Muka (Rp)

%

Jangka Waktu

tahun

Suku Bunga

%

Jumlah Angsuran

per bulan

foto-agen

HANDRI (YEEB)

Brighton Prestige

Green Lake - Jakarta Barat

Dengan klik tombol kontak, Pengguna setuju dengan Syarat Pengguna dan Kebijakan Privasi


Dengan klik tombol kontak, Pengguna setuju dengan Syarat Pengguna dan Kebijakan Privasi

Tertarik dengan Properti Ini?

Agent Image

HANDRI (YEEB)

Siap Membantu!

Butuh bantuan jual, sewa, cari properti? Brighton siap membantu

Hubungi Customer Service Brigita