Menu

KPR
FAQ
 
 
 
Rumah

JUAL TANJUNG DUREN

Rp 8,9 Miliar

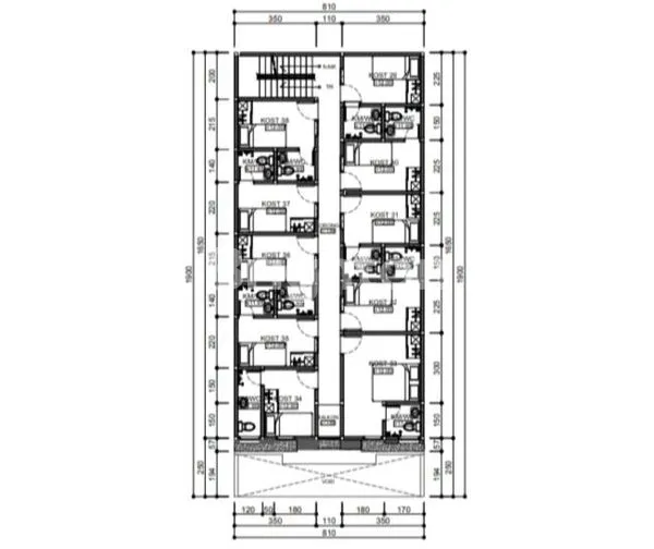
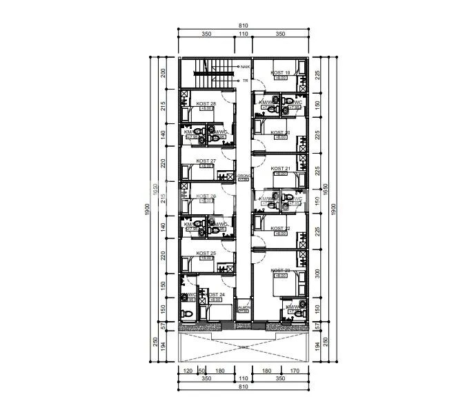
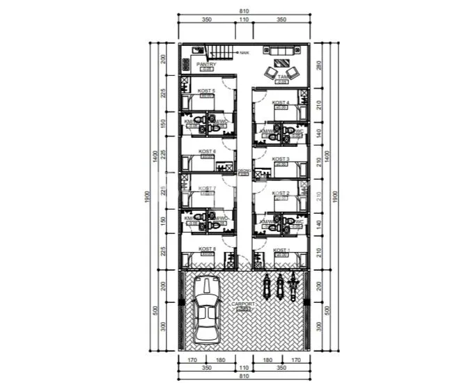
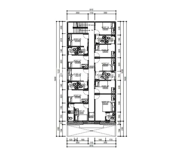
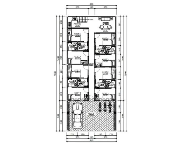
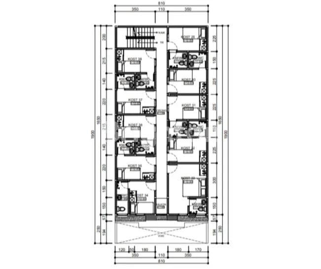
RUMAH KOS BARU 37 KAMAR TIDUR DI TANJUNG DUREN. BANGUNAN 4 LANTAI

 

Detail Properti

Transaksi

Jual

Kamar Tidur

37 + 1

Kamar Mandi

37

Luas Tanah

156 m2

Luas Bangunan

512 m2

Tipe Properti

Rumah

Alamat

TANJUNG DUREN

Lokasi

DKI Jakarta, Jakarta Barat, Tanjung Duren

Listrik

2200 Watt

Sertifikat

SHM

Hadap

Utara

Group

Secondary

Furnish

Non-furnished

Terdaftar Pada

11 Januari 2026

ID Listing

080226-BRTD00001

 

Keterangan

• Ada 37 kamar + 1
• Dikelilingi beberapa Universitas (Univ Tarumangara , Univ Trisakti , Uiniv Esa Unggul, Univ Bina Nusantara , UKRIDA) Perkantoran dan maupun Pusat Perbelanjaan (Central Park , Mall Taman Anggrek , Citraland Mall) tentunya mudah mendapatkan anak kos di awal.
• Dekat pintu toll Kebon Jeruk , pintu toll Jelambar dan pintu toll Slipi.
• Lokasi sangat strategis.

UKURAN KAMAR DAN INCOME :
• Ukuran kamar 3.x 3,4 (35 kamar tidur)
• Ukuran kamar 4,5 x 3,4 (3 kamar tidur)
• Potensi income 1.040 juta kotor (asumsi harga kamar medium 2.25 juta/bulan kamar besar 3.5 juta/bulan).

Segera miliki rumah kos 37 Kamar Tidur.

 

Simulasi Cicilan KPR

Harga Properti (Rp)

Rp 8,9 Miliar

Uang Muka (Rp)

%

Jangka Waktu

tahun

Suku Bunga

%

Jumlah Angsuran

per bulan

foto-agen

SELLY (SLV)

Brighton Akasia

Tanjung Duren - Jakarta Barat

Dengan klik tombol kontak, Pengguna setuju dengan Syarat Pengguna dan Kebijakan Privasi


Dengan klik tombol kontak, Pengguna setuju dengan Syarat Pengguna dan Kebijakan Privasi

Tertarik dengan Properti Ini?

Agent Image

SELLY (SLV)

Siap Membantu!

Butuh bantuan jual, sewa, cari properti? Brighton siap membantu

Hubungi Customer Service Brigita