Menu

KPR
FAQ
 
 
 
Rumah

JUAL TANJUNG DUREN

Rp 2,75 Miliar

4 RUMAH PREMIUM TANJUNG DUREN JAKARTA BARAT – JALAN LEBAR & BEBAS BANJIR

 

Detail Properti

Transaksi

Jual

Kamar Tidur

5

Kamar Mandi

4

Luas Tanah

67 m2

Luas Bangunan

183 m2

Tipe Properti

Rumah

Alamat

TANJUNG DUREN

Lokasi

DKI Jakarta, Jakarta Barat, Tanjung Duren

Listrik

3500 Watt

Sertifikat

SHM

Hadap

Utara

Group

Secondary

Furnish

Semi-furnished

Ada Garasi

Ya

Terdaftar Pada

28 Oktober 2025

ID Listing

242025-BRIM00002

 

Keterangan

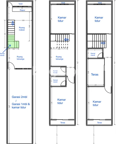
Rumah 3 lantai modern di Tanjung Duren, Jakarta Barat, lokasi premium dengan akses sangat mudah ke pusat belanja, sekolah favorit, rumah sakit, dan fasilitas gaya hidup. Bangunan kokoh, layout nyaman untuk keluarga, serta dilengkapi kamar tidur di lantai 1 yang ideal untuk orang tua, tamu, atau ART.
Spesifikasi Utama:
LT: 67 m² (3,5 x 19,2)
LB: 183 m²
5 Kamar Tidur
4 Kamar Mandi
3 Lantai
Garasi 3 Mobil
Hadap Utara
Kamar Tidur di Lantai 1
Estimasi serah terima: 30 Desember 2025
Material & Finishing:
Lantai utama: Granite tile 60x60
KM: Granite anti-slip 60x60
Plafon: Gypsum board dicat
Shower set: Setara American Standard
Kusen: Aluminium powder coating
Pintu utama & kamar: Pintu baja/premium finish
Keunggulan Properti:
Jalan depan rumah 3 mobil + bahu jalan ±4 meter
Lingkungan nyaman & bebas banjir
Full 3 lantai + balkon + void (ruang terasa lega & terang)
Lokasi strategis dekat mall, sekolah, RS & kuliner
Bisa request layout bila dibeli saat inden
Legal lengkap: SHM, IMB & PBB
Promo Inden Bulan Ini:
Free Full Furnish lantai 1 senilai 120 juta (±20 item)
Harga:
Rp 2,75 M (nego sampai deal)

 

Simulasi Cicilan KPR

Harga Properti (Rp)

Rp 2,75 Miliar

Uang Muka (Rp)

%

Jangka Waktu

tahun

Suku Bunga

%

Jumlah Angsuran

per bulan

foto-agen

VENI FELDA (UNFG)

Brighton Impact

Green Garden - Jakarta Barat


foto-agen

FERRY SUN (QKPO)

Brighton Impact

Green Garden - Jakarta Barat

Dengan klik tombol kontak, Pengguna setuju dengan Syarat Pengguna dan Kebijakan Privasi


Dengan klik tombol kontak, Pengguna setuju dengan Syarat Pengguna dan Kebijakan Privasi

Tertarik dengan Properti Ini?

Agent Image

VENI FELDA (UNFG)

Siap Membantu!

Butuh bantuan jual, sewa, cari properti? Brighton siap membantu

Hubungi Customer Service Brigita