Menu

KPR
FAQ
 
 
 
Rumah

JUAL TANJUNG DUREN

Rp 2,75 Miliar

DIJUAL RUMAH BARU 5 KT 3 LANTAI TOWNHOUSE PREMIUM TANJUNG DUREN DURI KEPA GROGOL JAKARTA BARAT 10 MENIT MALL CENTRAL PARK

 

Detail Properti

Transaksi

Jual

Kamar Tidur

5

Kamar Mandi

4

Luas Tanah

67 m2

Luas Bangunan

183 m2

Tipe Properti

Rumah

Alamat

TANJUNG DUREN

Lokasi

DKI Jakarta, Jakarta Barat, Grogol

Listrik

2200 Watt

Sertifikat

SHM

Hadap

Selatan

Group

Secondary

Furnish

-

Ada Garasi

Ya

Terdaftar Pada

16 Oktober 2025

ID Listing

162025-BRGA00015

 

Keterangan

Dijual Rumah Baru 5 KT 3 Lantai Townhouse Premium Tanjung Duren Duri Kepa Grogol Jakarta Barat 10 Menit Mall Central Park

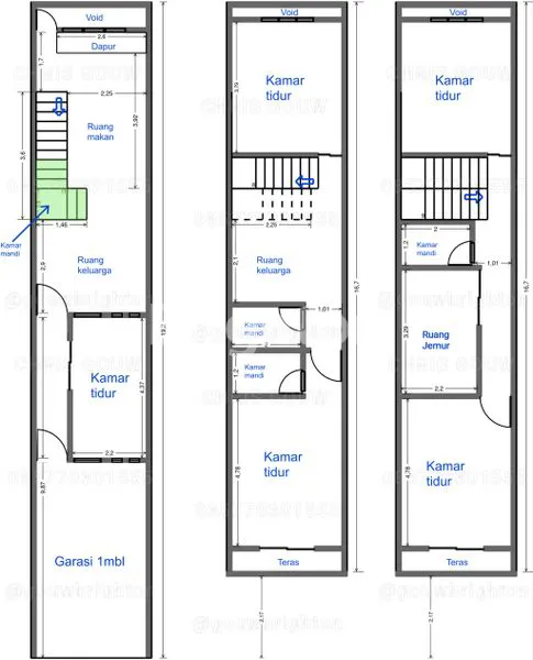
Luas Tanah 67 m²
Luas Bangunan 183 m²
Dimensi 3,5 x 19.2
Hadap Utara
Jamin Bebas Banjir Depan Rumah

Lantai 1: Ruang Keluarga + Dapur + Kamar Mandi + Garasi 2 Mobil Tandem (Opsi Garasi 1 Mobil + Kamar Tidur)
Lantai 2: Ruang Keluarga + Kamar Tidur 2 + Kamar Mandi 2 + Balkoni
Lantai 3: Kamar Tidur 2 + Kamar Mandi + Ruang Jemur + Balkoni

Kamar Tidur Utama + Ensuite Di Lantai 2
Row 3 Mobil
Bahu Jalan 4 Meter

Harga Nego
Promo Indent:
Free Upgrade Full Furnished Lantai 1 Senilai Rp 120 Juta
Estimasi Siap Huni 30 Desember 2025

 

Simulasi Cicilan KPR

Harga Properti (Rp)

Rp 2,75 Miliar

Uang Muka (Rp)

%

Jangka Waktu

tahun

Suku Bunga

%

Jumlah Angsuran

per bulan

foto-agen

CHRIS GOUW (HSXP)

Brighton Gracia

Green Garden - Jakarta Barat

Dengan klik tombol kontak, Pengguna setuju dengan Syarat Pengguna dan Kebijakan Privasi


Dengan klik tombol kontak, Pengguna setuju dengan Syarat Pengguna dan Kebijakan Privasi

Tertarik dengan Properti Ini?

Agent Image

CHRIS GOUW (HSXP)

Siap Membantu!

Butuh bantuan jual, sewa, cari properti? Brighton siap membantu

Hubungi Customer Service Brigita