Menu

KPR
FAQ
 
 
 
Rumah

JUAL TANJUNG DUREN

Rp 2,29 Miliar

RUMAH BARU 3 LANTAI CARPORT 2 MOBIL ROW 2 MOBIL DALAM KOMPLEK PERUMAHAN DI TANJUNG DUREN

 

Detail Properti

Transaksi

Jual

Kamar Tidur

3+1

Kamar Mandi

3

Luas Tanah

68 m2

Luas Bangunan

130 m2

Tipe Properti

Rumah

Alamat

TANJUNG DUREN

Lokasi

DKI Jakarta, Jakarta Barat, Tanjung Duren

Listrik

2200 Watt

Sertifikat

SHM

Hadap

Selatan

Group

Secondary

Furnish

Non-furnished

Ada Garasi

Ya

Terdaftar Pada

03 September 2025

ID Listing

031825-BRIM00052

 

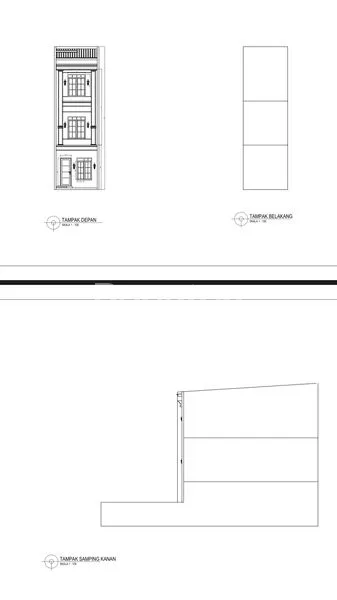
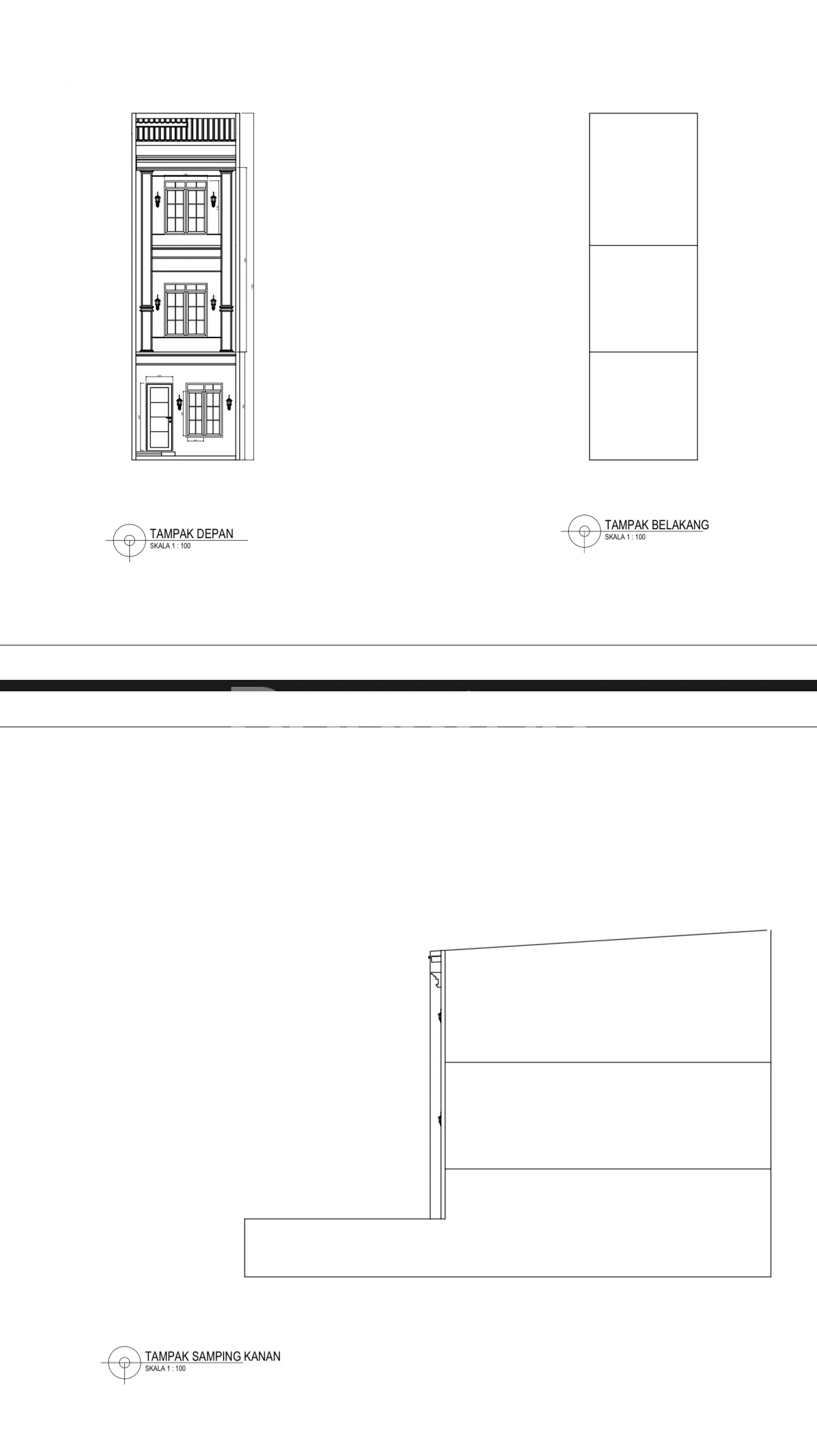
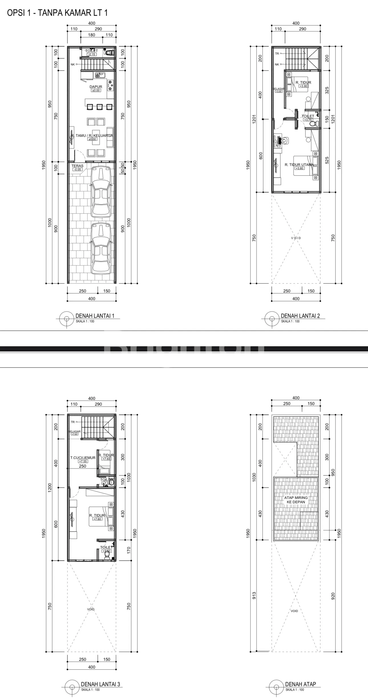
Keterangan

Lt 68 (3,6x19)
Lb 130

Opsi 1
2 carport
Kt 3+1
Km 3

Opsi 2
1 carport
Kt 4+1
Km 3+1

SHM
Hadap Utara
Jln 2mbl
2.29m nego

 

Simulasi Cicilan KPR

Harga Properti (Rp)

Rp 2,29 Miliar

Uang Muka (Rp)

%

Jangka Waktu

tahun

Suku Bunga

%

Jumlah Angsuran

per bulan

foto-agen

GRACE (MUXE)

Brighton Impact

Green Garden - Jakarta Barat

Dengan klik tombol kontak, Pengguna setuju dengan Syarat Pengguna dan Kebijakan Privasi


Dengan klik tombol kontak, Pengguna setuju dengan Syarat Pengguna dan Kebijakan Privasi

Tertarik dengan Properti Ini?

Agent Image

GRACE (MUXE)

Siap Membantu!

Butuh bantuan jual, sewa, cari properti? Brighton siap membantu

Hubungi Customer Service Brigita