Menu

KPR
FAQ
 
 
 
Tanah

SEWA TAMBAK OSOWILANGUN

Rp 122,4 Juta/m2

Rp 1,46 Triliun

LAHAN LOKASI JL GRESIK TAMBAK OSOWILANGUN DEKAT PELABUHAN TELUK LAMONG

 

Detail Properti

Transaksi

Sewa

Kamar Tidur

-

Kamar Mandi

-

Luas Tanah

12000 m2

Tipe Properti

Tanah

Alamat

TAMBAK OSOWILANGUN

Lokasi

Jawa Timur, Surabaya, Benowo

Listrik

-

Sertifikat

Lain-lain

Hadap

-

Group

Secondary

Furnish

-

Per m2

Rp 122,400,000 m2

Terdaftar Pada

03 Oktober 2025

ID Listing

032025-BRCBD00003

 

Keterangan

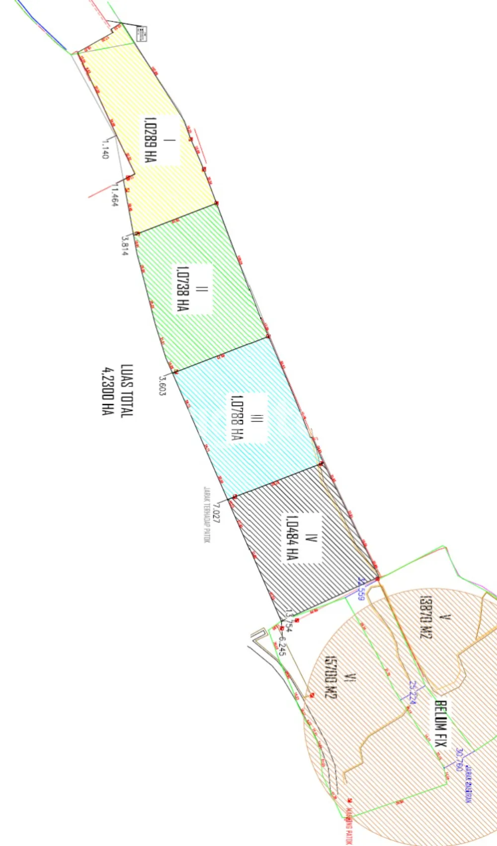
SEWA LAHAN LOKASI JL GRESIK TAMBAK OSOWILANGUN
DEKAT PELABUHAN TELUK LAMONG

LOKASI I = PAVING
LUAS 1.02 HA
PRICE 12RB/M2/ BLN

LOKASI II = BASECOURSE
LUAS 1.07 HA
PRICE 10RB/M2/BULAN

LOKASI III, IV, V, VI = LIMESTONE
LUAS 4 HA
PRICE 7.5RB/M2/BULAN

* HARGA BELUM PPN DAN PPH
* HARGA BISA NEGO U JK PANJANG
* ⁠TIDAK HARUS 1 HA MIN SEWA 2000M2

foto-agen

FANNY FANG (FNN)

Brighton Premier

Villa Bukit Mas - Surabaya

Dengan klik tombol kontak, Pengguna setuju dengan Syarat Pengguna dan Kebijakan Privasi
Dengan klik tombol kontak, Pengguna setuju dengan Syarat Pengguna dan Kebijakan Privasi

Tertarik dengan Properti Ini?

Agent Image

FANNY FANG (FNN)

Siap Membantu!

Butuh bantuan jual, sewa, cari properti? Brighton siap membantu

Hubungi Customer Service Brigita