Menu

KPR
FAQ
 
 
 
Tanah

SEWA TAMBAK OSOWILANGUN

Rp 156 Ribu/m2

Rp 2,49 Miliar

LAHAN DI TAMBAK OSOWILANGUN

 

Detail Properti

Transaksi

Sewa

Kamar Tidur

-

Kamar Mandi

-

Luas Tanah

16000 m2

Tipe Properti

Tanah

Alamat

TAMBAK OSOWILANGUN

Lokasi

Jawa Timur, Surabaya, Benowo

Listrik

-

Sertifikat

SHM

Hadap

-

Group

Secondary

Furnish

Non-furnished

Per m2

Rp 156,000 m2

Terdaftar Pada

28 November 2025

ID Listing

032025-BRC00017

 

Keterangan

Disewakan

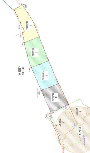
Sewa lahan lokasi jl tambak Osowilangun
Dekat pelabuhan teluk lamong

Lokasi I,II = paving
Luas 1.6 ha
Price 13rb/m2/ bln

Lokasi III = basecourse
Luas 0.8 ha
Price 11rb/m2/bulan

Lokasi IV,V,VI=limestone
Luas 4 ha
Price 7.5rb/m2/bulan

• Harga bs nego u jk panjang
• Harga termasuk PPH
• Min sewa 2000m2

foto-agen

DIDIK (LSRI)

Brighton Champion

Citraland - Surabaya


foto-agen

JAY (DQMD)

Brighton Champion

Citraland - Surabaya

Dengan klik tombol kontak, Pengguna setuju dengan Syarat Pengguna dan Kebijakan Privasi
Dengan klik tombol kontak, Pengguna setuju dengan Syarat Pengguna dan Kebijakan Privasi

Tertarik dengan Properti Ini?

Agent Image

DIDIK (LSRI)

Siap Membantu!

Butuh bantuan jual, sewa, cari properti? Brighton siap membantu

Hubungi Customer Service Brigita