Menu

KPR
FAQ
 
 
 
image LAHAN STRATEGIS TAMBAK OSOWILANGUN SURABAYA (1)
image LAHAN STRATEGIS TAMBAK OSOWILANGUN SURABAYA (2)
Tanah

SEWA TAMBAK OSOWILANGUN

Rp 10 Ribu/m2

Rp 107 Juta

LAHAN STRATEGIS TAMBAK OSOWILANGUN SURABAYA

 

Detail Properti

Transaksi

Sewa

Kamar Tidur

-

Kamar Mandi

-

Luas Tanah

10700 m2

Tipe Properti

Tanah

Alamat

TAMBAK OSOWILANGUN

Lokasi

Jawa Timur, Surabaya, Benowo

Listrik

-

Sertifikat

SHM

Hadap

-

Group

Secondary

Furnish

-

Per m2

Rp 10,000 m2

Terdaftar Pada

30 September 2025

ID Listing

301825-BRC00050

 

Keterangan

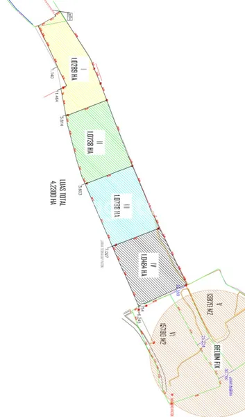
Luas tanah 10700 m2 (1.07 Ha)
Tanah basecourse
Lokasi strategis
Lokasi dekat :
- Pelabuhan teluk lamong
Lokasi cocok untuk :
- Depot kontainer
- Parkir alat berat
- Stokpile besi roll

Harga belum ppn dan pph
Tidah harus sewa semua lahan
Minimal sewa 2000 m2

foto-agen

DAVID LIEM (WPDZ)

Brighton Champion

Citraland - Surabaya

Dengan klik tombol kontak, Pengguna setuju dengan Syarat Pengguna dan Kebijakan Privasi
Dengan klik tombol kontak, Pengguna setuju dengan Syarat Pengguna dan Kebijakan Privasi

Tertarik dengan Properti Ini?

Agent Image

DAVID LIEM (WPDZ)

Siap Membantu!

Butuh bantuan jual, sewa, cari properti? Brighton siap membantu

Hubungi Customer Service Brigita