Menu

KPR
FAQ
 
 
 
Tanah

SEWA TAMBAK OSOWILANGUN

Rp 10 Ribu/m2

Rp 107 Juta

LAHAN BASECOURSE LUAS 1 HEKTAR DI TAMBAK OSOWILANGUN DEKAT PELABUHAN TELUK LAMONG, SURABAYA BARAT

 

Detail Properti

Transaksi

Sewa

Kamar Tidur

-

Kamar Mandi

-

Luas Tanah

10700 m2

Tipe Properti

Tanah

Alamat

TAMBAK OSOWILANGUN

Lokasi

Jawa Timur, Surabaya, Benowo

Listrik

-

Sertifikat

SHM

Hadap

-

Group

Secondary

Furnish

Non-furnished

Per m2

Rp 10,000 m2

Terdaftar Pada

01 November 2025

ID Listing

221625-BRS00061

 

Keterangan

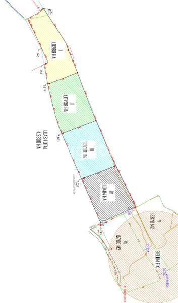
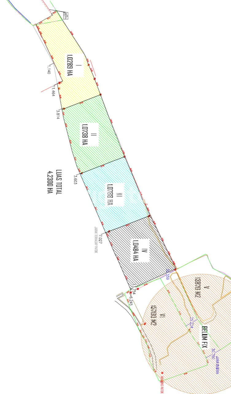
Disewakan Lahan Basecourse Lokasi Tambak Osowilangun, Surabaya Barat
Dekat Pelabuhan Teluk Lamong

Lokasi Basecourse Luas 1.07 ha

• ⁠Harga Masih Bisa Nego
• Sertifikat SHM
• Minimal Sewa Seluas 2000m²

foto-agen

IKA SAN (EQZY)

Brighton Titanium

Satelit - Surabaya

Dengan klik tombol kontak, Pengguna setuju dengan Syarat Pengguna dan Kebijakan Privasi
Dengan klik tombol kontak, Pengguna setuju dengan Syarat Pengguna dan Kebijakan Privasi

Tertarik dengan Properti Ini?

Agent Image

IKA SAN (EQZY)

Siap Membantu!

Butuh bantuan jual, sewa, cari properti? Brighton siap membantu

Hubungi Customer Service Brigita