Menu

KPR
FAQ
 
 
 
Tanah

SEWA TAMBAK OSOWILANGUN

Rp 7,5 Ribu/m2

Rp 300 Juta

SEWA TANAH TAMBAK OSOWILANGUN BENOWO

 

Detail Properti

Transaksi

Sewa

Kamar Tidur

-

Kamar Mandi

-

Luas Tanah

40000 m2

Tipe Properti

Tanah

Alamat

TAMBAK OSOWILANGUN

Lokasi

Jawa Timur, Surabaya, Benowo

Listrik

-

Sertifikat

Lain-lain

Hadap

-

Group

Primary

Furnish

-

Per m2

Rp 7,500 m2

Terdaftar Pada

12 September 2025

ID Listing

181425-BRONE00017

 

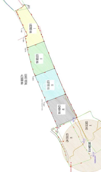
Keterangan

Lokasi I,II : paving
Luas 1.6 ha
Price 13rb/m2/ bln

Lokasi III : basecourse
Luas 0.8 ha
Price 11rb/m2/bulan

Lokasi IV,V,VI:limestone
Luas 4 ha
Price 7.5rb/m2/bulan

• Harga bs nego untuk jangka panjang

foto-agen

FX RICHARD (UNKP)

Brighton One

CBD Sudirman - Surabaya

Dengan klik tombol kontak, Pengguna setuju dengan Syarat Pengguna dan Kebijakan Privasi
Dengan klik tombol kontak, Pengguna setuju dengan Syarat Pengguna dan Kebijakan Privasi

Tertarik dengan Properti Ini?

Agent Image

FX RICHARD (UNKP)

Siap Membantu!

Butuh bantuan jual, sewa, cari properti? Brighton siap membantu

Hubungi Customer Service Brigita