Menu

KPR
FAQ
 
 
 
Rumah Kos

JUAL SEKELOA TIMUR

Rp 1,8 Miliar

RUMAH KOS STRATEGIS DI BANDUNG DEKAT ITB, UNPAD, UNIKOM 23 KAMAR FULL TERISI

 

Detail Properti

Transaksi

Jual

Kamar Tidur

23

Kamar Mandi

23

Luas Tanah

195 m2

Luas Bangunan

650 m2

Tipe Properti

Rumah Kos

Alamat

SEKELOA TIMUR

Lokasi

Jawa Barat, Bandung, Dago

Listrik

5500 Watt

Sertifikat

SHM

Hadap

Timur

Group

Secondary

Furnish

Non-furnished

Terdaftar Pada

26 Juli 2025

ID Listing

261425-TNBD00004

 

Keterangan

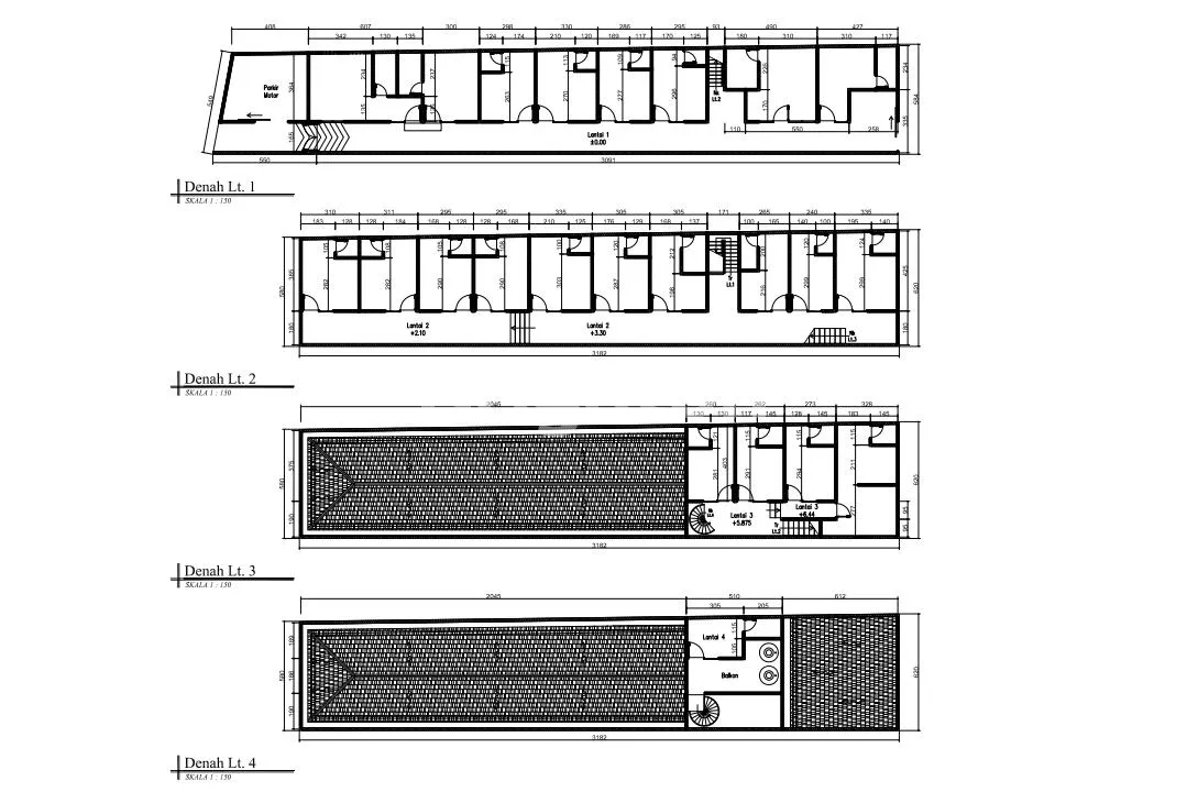
Rumah kos baru di Bandung
23 kamar + KM dalam,
4 LT di gang.
Berada di sayap dago, dipatiukur, suci
Akses masuk motor saja, dekat parkir mobil +- 50m
LT: 195 m2,
LB: 650 m2,
SHM,
IMB,
Listrik 2200W + 5500W,
PAM,
Parkir 25 motor
Belakang kampus ITHB, UNIKOM, UNPAD, TELKOM, dekat gasibu, monumen Jabar. Dikelilingi banyak kampus2 besar & gedung perkantoran spt: STIEB, UNWIM, YPKP, ITB, ITENAS

Kosan penuh, waiting list
INFO RUMAH KOST PELANGI

Lantai 1: 9 kamar
Lantai 2: 10 kamar
Lantai 3: 4 kamar
Lantai 4: 1 kamar

5 kamar yg 500rb/bln
8 kamar yg 600rb/bln
10 kamar yg 700rb/bln
1 kamar family yg 1 jt/bln

 

Simulasi Cicilan KPR

Harga Properti (Rp)

Rp 1,8 Miliar

Uang Muka (Rp)

%

Jangka Waktu

tahun

Suku Bunga

%

Jumlah Angsuran

per bulan

foto-agen

FELICIA (DVVW)

Brighton Titanium

Veteran - Bandung

Dengan klik tombol kontak, Pengguna setuju dengan Syarat Pengguna dan Kebijakan Privasi


Dengan klik tombol kontak, Pengguna setuju dengan Syarat Pengguna dan Kebijakan Privasi

Tertarik dengan Properti Ini?

Agent Image

FELICIA (DVVW)

Siap Membantu!

Butuh bantuan jual, sewa, cari properti? Brighton siap membantu

Hubungi Customer Service Brigita