Menu

KPR
FAQ
 
 
 
Rumah

JUAL SAMANEA HILL CLUSTER AVILLA

Rp 880 Juta

RUMAH FULLY FURNISHED DI SAMANEA HILL, DEKAT STASIUN

 

Detail Properti

Transaksi

Jual

Kamar Tidur

2

Kamar Mandi

1

Luas Tanah

72 m2

Luas Bangunan

47 m2

Tipe Properti

Rumah

Alamat

SAMANEA HILL CLUSTER AVILLA

Lokasi

Jawa Barat, Bogor, Parung Panjang

Listrik

2200 Watt

Sertifikat

SHM

Hadap

Selatan

Group

Secondary

Furnish

Fully-furnished

Ada Garasi

Ya

Terdaftar Pada

26 Desember 2025

ID Listing

262425-HNDE00001

 

Keterangan

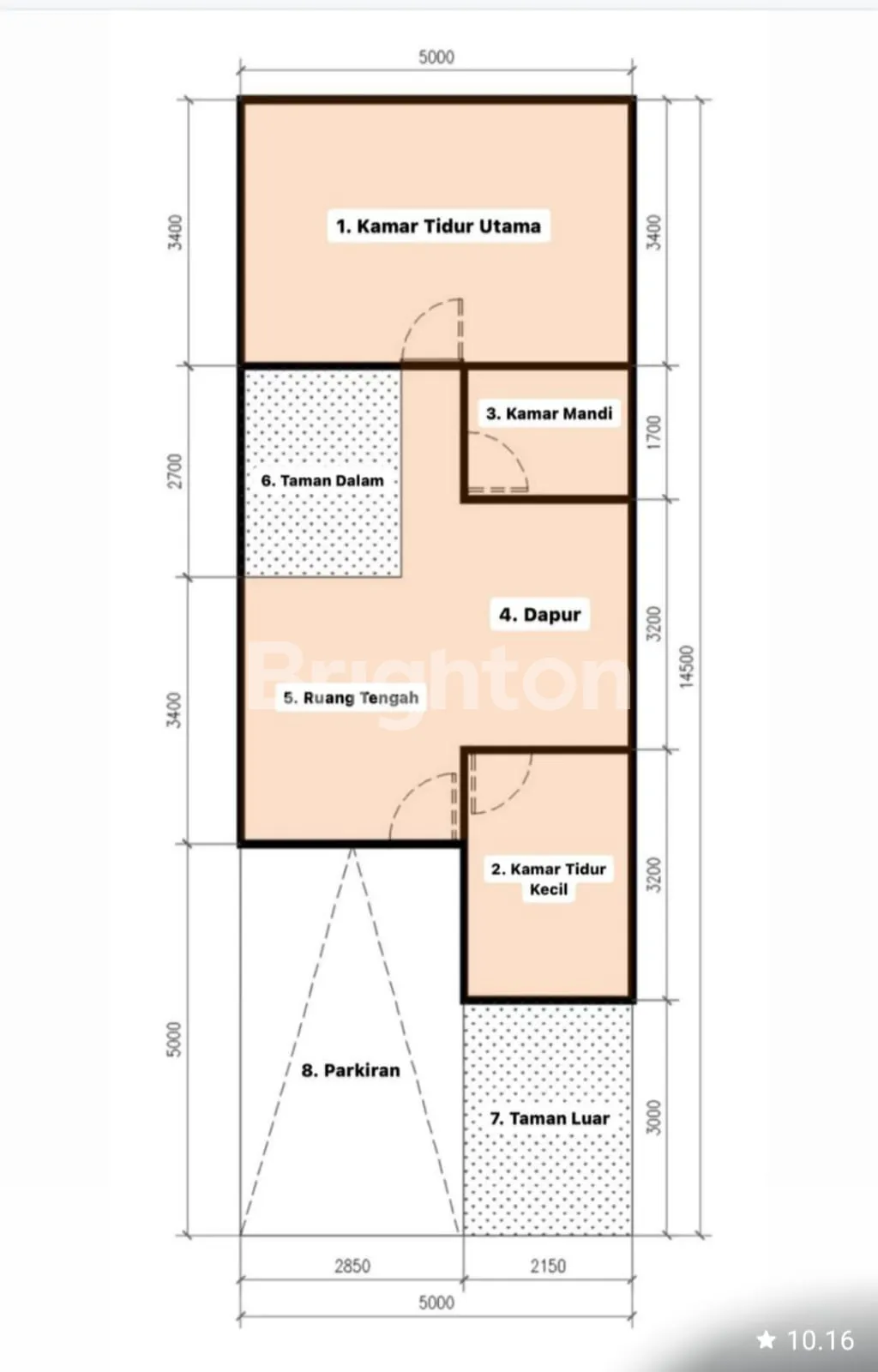
Rumah Take over di Samanea  Hill Cluster Avilla Tipe Suite Full Renovasi

Renovasi :
• Perluasan kamar utama manjadi 5x3.5 m²
• Kanopi taman dalam dari kaca yang bisa buka tutup
• Perluasan area ruang tamu dan depan kamar utama
• Teralis besi di pintu utama
• Teralis besi di jendela anak

Include :
• Furnitur dan elektronik (optional)
• Kitchen set (termasuk kompor tanam modena 2 panci dan kitchen hood98 modena)
• Full set kamar anak, Backdrop TV
• Vinyl Taco dikamar utama dan kamar anak
• Heksos KDK  kamar mandi
• 2 AC Sharp 1/5PK kamar anak & kamar utama
• Dispenser Sanken
• Kulkas samsung 2 pintu
• Smart TV  samsung 50inch
• Water Heater Ariston 15Liter

Lokasi strategis :
• aman, bebas banjir dan nyaman  (satpam 24 jam)
• dekat stsiun KRL Parung Panjang (ada shutle bus utk PP Cluster ke stasiun kereta)
• dekat dengan Mall/pusat perbelanjaan BSD
• Dekat institusi pendidikan : STAI NIDA El  Adabi
• dekat RS Azkia Medika,  RS Bunda Mulya

Tersedia Ruangan :
• Taman Bermain Anak di dalam Cluster dan Club House
• akses Jalan bisa masuk 2 mobil

 

Simulasi Cicilan KPR

Harga Properti (Rp)

Rp 880 Juta

Uang Muka (Rp)

%

Jangka Waktu

tahun

Suku Bunga

%

Jumlah Angsuran

per bulan

foto-agen

MAMIK (GWCE)

Brighton Harmony

BSD - Tangerang Selatan

Dengan klik tombol kontak, Pengguna setuju dengan Syarat Pengguna dan Kebijakan Privasi


Dengan klik tombol kontak, Pengguna setuju dengan Syarat Pengguna dan Kebijakan Privasi

Tertarik dengan Properti Ini?

Agent Image

MAMIK (GWCE)

Siap Membantu!

Butuh bantuan jual, sewa, cari properti? Brighton siap membantu

Hubungi Customer Service Brigita