Menu

KPR
FAQ
 
 
 
Tanah

JUAL RAYA KALIMALANG

Rp 11,9 Juta/m2

Rp 10,75 Miliar

TANAH KOMERSIAL 904M2 DI JALAN RAYA KALIMALANG BEKASI

 

Detail Properti

Transaksi

Jual

Kamar Tidur

-

Kamar Mandi

-

Luas Tanah

904 m2

Tipe Properti

Tanah

Alamat

RAYA KALIMALANG

Lokasi

Jawa Barat, Bekasi, Bekasi Barat

Listrik

-

Sertifikat

SHM

Hadap

-

Group

Secondary

Furnish

-

Per m2

Rp 11,900,000 m2

Terdaftar Pada

05 September 2025

ID Listing

051825-BRTD00052

 

Keterangan

Lahan/ tanah komersial strategis
Terletak di pinggir jalan Raya Kalimalang, Bekasi Barat
Cocok dibangun gedung kantor, sekolah, showroom mobil dan lainnya
Cocok juga untuk investasi karena area masih berkembang, harga akan naik

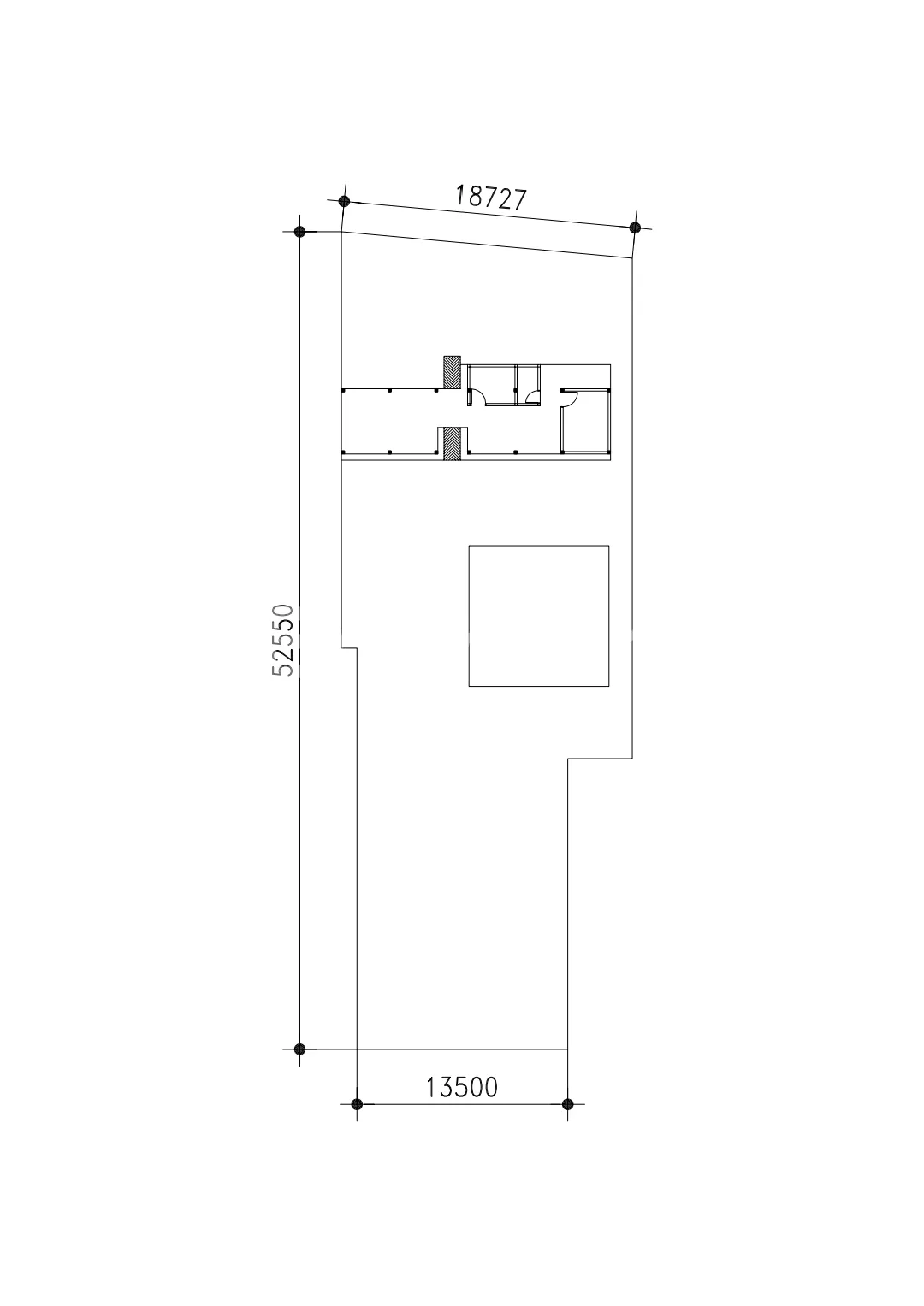
Luas tanah total 904 m2
Lebar depan 13,5 m
Lebar belakang 18,7 m
ROW jalan 20 m ( rencana), eksisting 9 m

Peruntukan Zona Komersial K-1
Ada pagar tembok sekeliling
Status clean and clear
Sertifikat 2 SHM

Harga Rp 11,9 juta/m2, nego

 

Simulasi Cicilan KPR

Harga Properti (Rp)

Rp 10,75 Miliar

Uang Muka (Rp)

%

Jangka Waktu

tahun

Suku Bunga

%

Jumlah Angsuran

per bulan
foto-agen

SOPHIA (FVIH)

Brighton Akasia

Tanjung Duren - Jakarta Barat

Dengan klik tombol kontak, Pengguna setuju dengan Syarat Pengguna dan Kebijakan Privasi
Dengan klik tombol kontak, Pengguna setuju dengan Syarat Pengguna dan Kebijakan Privasi

Tertarik dengan Properti Ini?

Agent Image

SOPHIA (FVIH)

Siap Membantu!

Butuh bantuan jual, sewa, cari properti? Brighton siap membantu

Hubungi Customer Service Brigita