Menu

KPR
FAQ
 
 
 
Gudang

JUAL/SEWA PUNTODEWO KEPUH KERTOSONO

Rp 33 Miliar

Rp 2 Miliar

GUDANG KEPUH KERTOSONO

 

Detail Properti

Transaksi

Jual Sewa

Kamar Tidur

-

Kamar Mandi

3

Luas Tanah

13759 m2

Luas Bangunan

6527.46 m2

Tipe Properti

Gudang

Alamat

PUNTODEWO KEPUH KERTOSONO

Lokasi

Jawa Timur, Nganjuk, Kertosono

Listrik

53000 Watt

Sertifikat

SHM

Hadap

Barat

Group

Secondary

Furnish

Non-furnished

Ada Garasi

Ya

Terdaftar Pada

04 November 2025

ID Listing

061624-BRG00087

 

Keterangan

Gudang,tempat usaha dll
di Kertosono Nganjuk
row jalan lebar

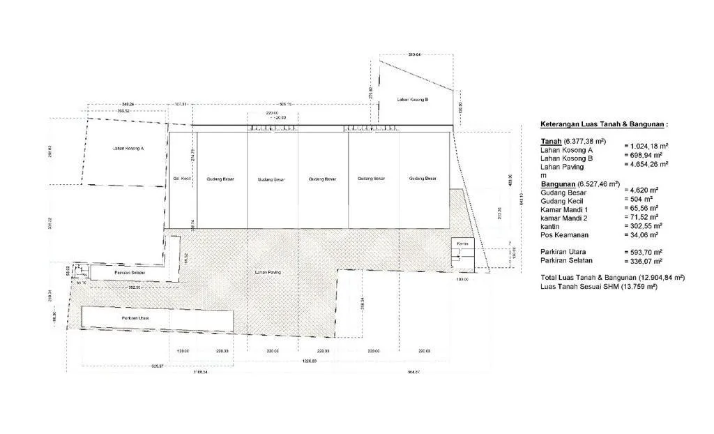
Luas Tanah Total 13.759m²

TANAH: 6.377m²
Lahan kosong A: 1.024m²
Lahan kosong B: 698m²
Lahan paving: 4.654m2

BANGUNAN: 6.527,46m²
Gudang besar: 4.620m²
Gudang kecil: 504m²
kamar mandi 1: 65m²
kamar mandi 2: 71m²
kantin : 302m²
Pos security: 34m²
Parkir Utara: 593m²
Parkir Selatan: 336m²

harga jual 33M
harga sewa 2M nego /tahun
Minimal sewa 5 tahun

dekat balai desa,,dekat akses tol,, strategis

 

Simulasi Cicilan KPR

Harga Properti (Rp)

Rp 33 Miliar

Uang Muka (Rp)

%

Jangka Waktu

tahun

Suku Bunga

%

Jumlah Angsuran

per bulan

foto-agen

RENNY (RZT)

Brighton First

Graha - Surabaya

Dengan klik tombol kontak, Pengguna setuju dengan Syarat Pengguna dan Kebijakan Privasi


Dengan klik tombol kontak, Pengguna setuju dengan Syarat Pengguna dan Kebijakan Privasi

Tertarik dengan Properti Ini?

Agent Image

RENNY (RZT)

Siap Membantu!

Butuh bantuan jual, sewa, cari properti? Brighton siap membantu

Hubungi Customer Service Brigita