Menu

KPR
FAQ
 
 
 
Pabrik

SEWA KOTABUMI

Rp 2,1 Miliar

PABRIK ATAU GUDANG SIAP PAKAI

 

Detail Properti

Transaksi

Sewa

Kamar Tidur

0

Kamar Mandi

2

Luas Tanah

50000 m2

Luas Bangunan

8000 m2

Tipe Properti

Pabrik

Alamat

KOTABUMI

Lokasi

Banten, Tangerang, Kotabumi

Listrik

95000 Watt

Sertifikat

HGB

Hadap

Utara

Group

-

Furnish

-

Terdaftar Pada

30 Oktober 2025

ID Listing

302025-BRMX00016

 

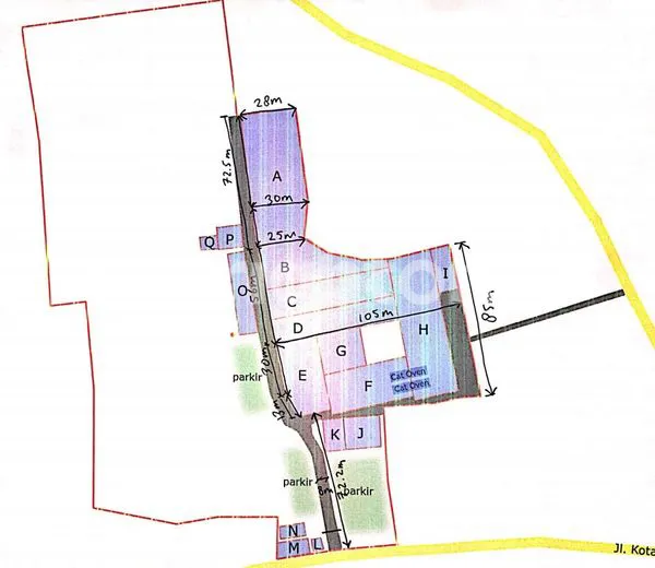
Keterangan

Pabrik Disewakan
Bisa untuk Pabrik atau Gudang
Lokasi luas ada tanah sisa
Luas tanah 50.000m2
Luas Bangunan +- 8000 m2
Terdiri beberapa Bangunan Gudang
Listrik 197.000
Air Tanah
Akses 40 feet
Bebas Banjir


foto-agen

IWAN ROS (OHHA)

Brighton Max

Gading Serpong - Tangerang

Dengan klik tombol kontak, Pengguna setuju dengan Syarat Pengguna dan Kebijakan Privasi


Dengan klik tombol kontak, Pengguna setuju dengan Syarat Pengguna dan Kebijakan Privasi

Tertarik dengan Properti Ini?

Agent Image

IWAN ROS (OHHA)

Siap Membantu!

Butuh bantuan jual, sewa, cari properti? Brighton siap membantu

Hubungi Customer Service Brigita