Menu

KPR
FAQ
 
 
 
Tanah

SEWA JL SRI REJEKI

Rp 220 Ribu/m2

Rp 594 Juta

TANAH KAVLING ZONA PARIWISATA DI DAERAH LEGIAN KUTA

 

Detail Properti

Transaksi

Sewa

Kamar Tidur

-

Kamar Mandi

-

Luas Tanah

2700 m2

Tipe Properti

Tanah

Alamat

JL SRI REJEKI

Lokasi

Bali, Badung, Legian

Listrik

-

Sertifikat

SHM

Hadap

-

Group

Primary

Furnish

Non-furnished

Per m2

Rp 220,000 m2

Terdaftar Pada

26 Juli 2025

ID Listing

261425-ONECG00014

 

Keterangan

Disewakan Tanah

Spesifikasi
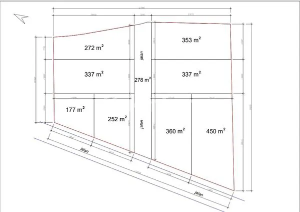
Luas tanah 2700m² (27 Are)
SHM
Min 3 Are perkavling

Informasi
+Hanya 8 kapling
+Min 300m² per kapling
+Bisa kontrak 25tahun + 25 tahun..
+Pembayaran termin sampai 6 bulan.
+Seminyak dan pantai legian hanya 3 menit

Daerah premium full villa

Disewakan Harga Rp. 22.000.000,-Tahun
masa sewa 25 tahun
Harga Global Rp. 594.000.000

foto-agen

JUNITA (GQPX)

Brighton One

Canggu - Bali

Dengan klik tombol kontak, Pengguna setuju dengan Syarat Pengguna dan Kebijakan Privasi
Dengan klik tombol kontak, Pengguna setuju dengan Syarat Pengguna dan Kebijakan Privasi

Tertarik dengan Properti Ini?

Agent Image

JUNITA (GQPX)

Siap Membantu!

Butuh bantuan jual, sewa, cari properti? Brighton siap membantu

Hubungi Customer Service Brigita