Menu

KPR
FAQ
 
 
 
Tanah

JUAL JL PESANGGRAHAN

Rp 30 Juta/m2

Rp 50,46 Miliar

TANAH KAVLING KOMERSIL PINGGIR JALAN DEKAT PURI INDAH MALL JAKARTA BARAT

 

Detail Properti

Transaksi

Jual

Kamar Tidur

-

Kamar Mandi

-

Luas Tanah

1682 m2

Tipe Properti

Tanah

Alamat

JL PESANGGRAHAN

Lokasi

DKI Jakarta, Jakarta Barat, Puri Indah

Listrik

-

Sertifikat

SHM

Hadap

-

Group

Secondary

Furnish

Non-furnished

Ada Garasi

Ya

Per m2

Rp 30,000,000 m2

Terdaftar Pada

13 Agustus 2025

ID Listing

221425-BRGA00030

 

Keterangan

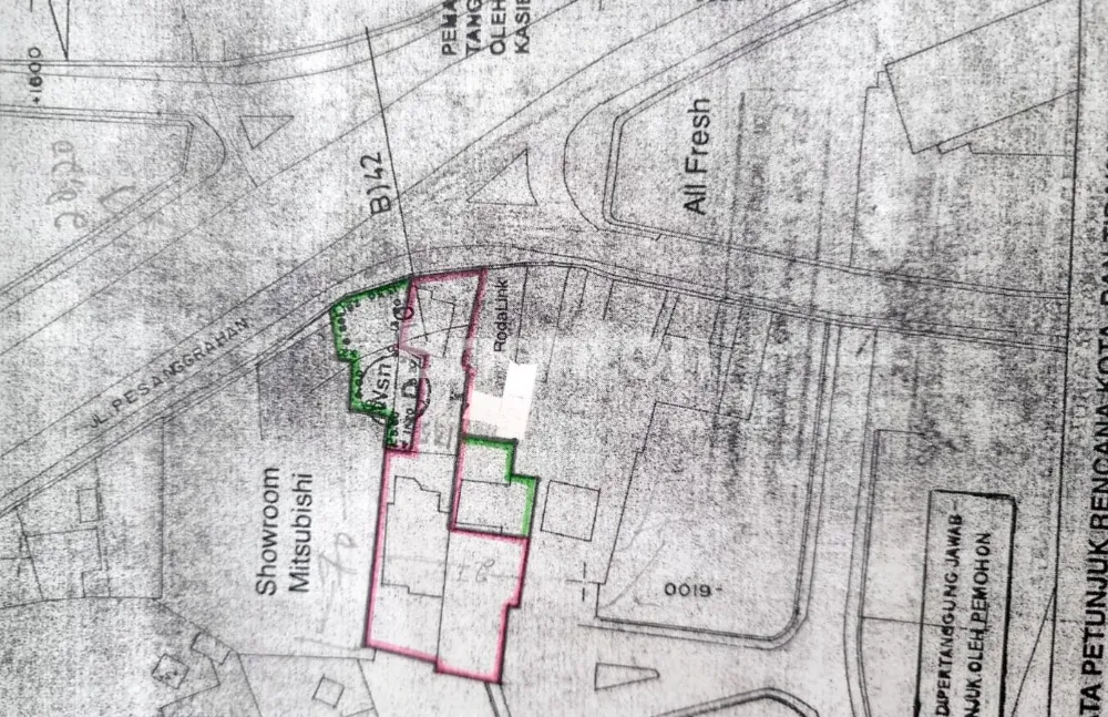
Dijual Tanah Kavling Komersil Lokasi Strategis Pinggir Jalan Raya Puri Indah

Luas Tanah 1682 M2
Depan nya lebar 28 meter
Belakang nya lebar 27 meter
Panjang dr depan ke belakang 70 m
SHM
Dekat Akses Tol Lingkar Luar
Dekat Pesanggrahan, Pasar Puri, Mall Puri Indah, Mall Lippo Mall Puri
Ngantong besar dibelakang
Lokasi pinggir jalan raya
Sangat Strategis, Cocok Untuk Dibangun Ruko, Bengkel, Showroom, Kantor, Restoran

Harga Jual : Rp 30 Juta/meter (Nego)

 

Simulasi Cicilan KPR

Harga Properti (Rp)

Rp 50,46 Miliar

Uang Muka (Rp)

%

Jangka Waktu

tahun

Suku Bunga

%

Jumlah Angsuran

per bulan
foto-agen

GARICK (HJCC)

Brighton Gracia

Green Garden - Jakarta Barat

Dengan klik tombol kontak, Pengguna setuju dengan Syarat Pengguna dan Kebijakan Privasi
Dengan klik tombol kontak, Pengguna setuju dengan Syarat Pengguna dan Kebijakan Privasi

Tertarik dengan Properti Ini?

Agent Image

GARICK (HJCC)

Siap Membantu!

Butuh bantuan jual, sewa, cari properti? Brighton siap membantu

Hubungi Customer Service Brigita