Menu

KPR
FAQ
 
 
 
Rumah

JUAL JL TUKAD PAKERISAN

Rp 2,91 Miliar

HUNIAN INDENT MEWAH DAN MODERN DI PUSAT KOTA DENPASAR

 

Detail Properti

Transaksi

Jual

Kamar Tidur

3+1

Kamar Mandi

3+1

Luas Tanah

103 m2

Luas Bangunan

240 m2

Tipe Properti

Rumah

Alamat

JL TUKAD PAKERISAN

Lokasi

Bali, Denpasar, Panjer

Listrik

3500 Watt

Sertifikat

SHM

Hadap

Selatan

Group

Secondary

Furnish

Non-furnished

Ada Garasi

Ya

Terdaftar Pada

15 Januari 2026

ID Listing

301425-BRSE00033

 

Keterangan

DIJUAL RUMAH INDENT KONSEP TROPIS MODERN DI PUSAT KOTA DENPASAR

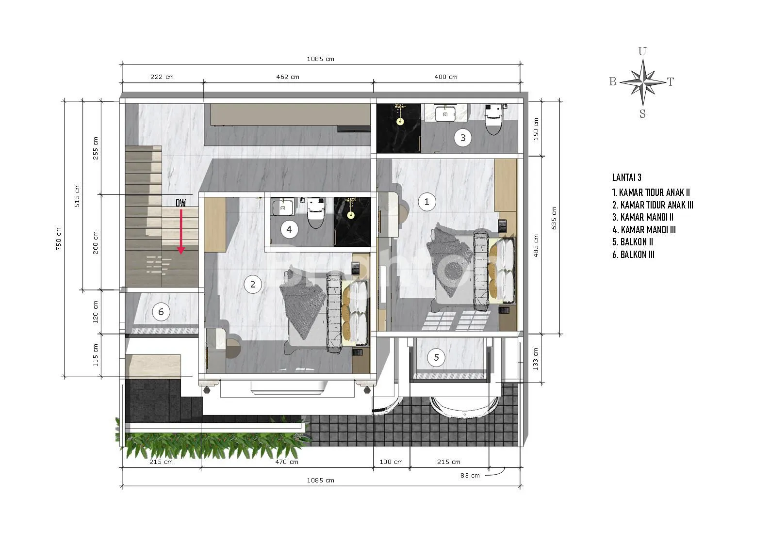
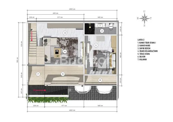
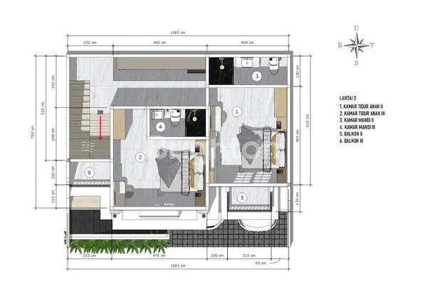
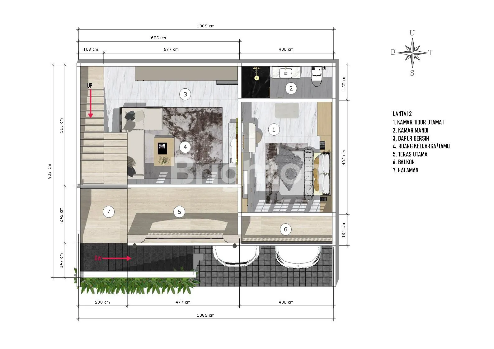
Hunian 3 lantai dengan konsep tropis-modern dan tata ruang fungsional seperti terlihat pada gambar denah (lantai 1, 2, dan 3) serta interior visual yang elegan dan kontemporer.

📏 Spesifikasi Teknis

Luas Tanah: 103–109 m²

Luas Bangunan: ± 240 m² (bisa dikustom berdasarkan kebutuhan)

Kamar Tidur: 3+1 (utama, 2 anak, & kamar ART)

Kamar Mandi: 3+1 (arus modern, salah satunya en-suite)

Halaman & Teras: Balkon di tiap lantai & halaman depan yang lapang

Area Servis: Dapur bersih & kotor, area laundry/jemur, serta teras belakang multifungsi

Parkir: Garasi dan carport – mampu parkir dua mobil

Daya Listrik: 3.500 VA

Sumber Air: Sumur bor (BOR)

🛋 Tata Ruang Utama & Interior

Lantai 1: kamar ART, kamar mandi khusus, dapur kotor, garasi, carport, dan area jemur.

Lantai 2: ruang keluarga luas, kamar tidur utama dengan kamar mandi pribadi, teras depan dan balkon samping memanjang.

Lantai 3: dua kamar anak masing-masing didampingi kamar mandi dan balkon pribadi.

Desain interior mengusung tampilan premium: marmer putih & abu, kabinet kayu minimalis, plafon tinggi, cahaya alami dari skylight dan kaca besar, serta tangga modern berpagar kaca yang mempercantik nuansa ruang tamu/dapur.

✨ Keunggulan Hunian

Denah rumah dirancang dengan zonasi jelas antara ruang privat dan publik.

Balkon di setiap lantai menambah sirkulasi udara dan cahaya alami.

Area yang multifungsi dan elastis untuk keluarga dan kebutuhan pekerja rumah tangga.

📌 Lokasi

Terletak di Jalan Tukad Pakerisan, Denpasar Selatan — kawasan yang sangat mudah diakses, bebas banjir, dan dekat fasilitas pendidikan, pusat kuliner, ritel & transportasi umum.

🏠
Unit terbatas—pesan indent, bangun sesuai preferensi Anda. DM atau hubungi untuk info lebih lanjut!

 

Simulasi Cicilan KPR

Harga Properti (Rp)

Rp 2,91 Miliar

Uang Muka (Rp)

%

Jangka Waktu

tahun

Suku Bunga

%

Jumlah Angsuran

per bulan

foto-agen

DEWIYANA (KOVE)

Brighton Synergy

Denpasar - Bali


foto-agen

DE OKA (TBEO)

Brighton Synergy

Denpasar - Bali

Dengan klik tombol kontak, Pengguna setuju dengan Syarat Pengguna dan Kebijakan Privasi


Dengan klik tombol kontak, Pengguna setuju dengan Syarat Pengguna dan Kebijakan Privasi

Tertarik dengan Properti Ini?

Agent Image

DEWIYANA (KOVE)

Siap Membantu!

Butuh bantuan jual, sewa, cari properti? Brighton siap membantu

Hubungi Customer Service Brigita