Menu

KPR
FAQ
 
 
 
Ruko

JUAL JL. TANJUNG DUREN BARAT

Rp 2,75 Miliar

DIJUAL RUKO BARU DI TANJUNG DUREN

 

Detail Properti

Transaksi

Jual

Kamar Tidur

5

Kamar Mandi

4

Luas Tanah

67 m2

Luas Bangunan

183 m2

Tipe Properti

Ruko

Alamat

JL. TANJUNG DUREN BARAT

Lokasi

DKI Jakarta, Jakarta Barat, Tanjung Duren

Listrik

2200 Watt

Sertifikat

HGB

Hadap

Utara

Group

Primary

Furnish

Semi-furnished

Ada Garasi

Ya

Terdaftar Pada

19 November 2025

ID Listing

232025-WNCK00005

 

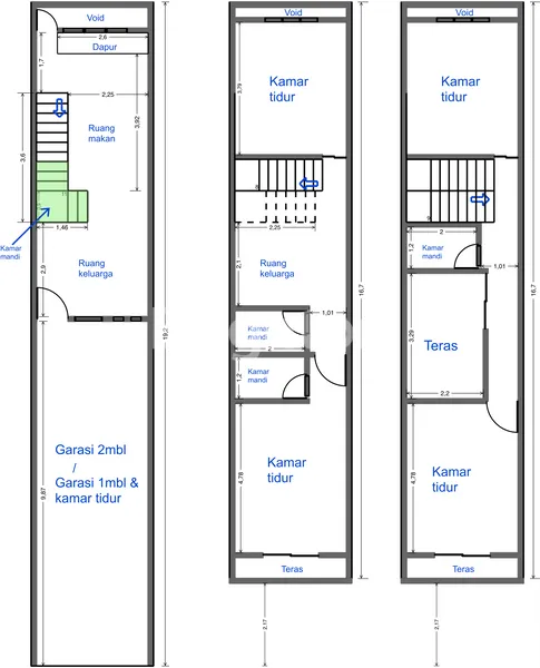
Keterangan

Uk. 3,5x19.2m Hanya Ada 4 unit
(Row 3mbl, Bahu jalan 4mtr,
Garasi 3mbl, kamar di lt.1)

Harga: 2.750m (nego),
Promo indent: Free Upgrade Full Furnish di Lantai 1 (senilai 120jt)

Serah Terima bulan Desember 2025

 

Simulasi Cicilan KPR

Harga Properti (Rp)

Rp 2,75 Miliar

Uang Muka (Rp)

%

Jangka Waktu

tahun

Suku Bunga

%

Jumlah Angsuran

per bulan

foto-agen

SUGI (IJWC)

Brighton Winner

Cengkareng - Jakarta Barat

Dengan klik tombol kontak, Pengguna setuju dengan Syarat Pengguna dan Kebijakan Privasi


Dengan klik tombol kontak, Pengguna setuju dengan Syarat Pengguna dan Kebijakan Privasi

Tertarik dengan Properti Ini?

Agent Image

SUGI (IJWC)

Siap Membantu!

Butuh bantuan jual, sewa, cari properti? Brighton siap membantu

Hubungi Customer Service Brigita