Menu

KPR
FAQ
 
 
 
Tanah

SEWA JL TAMBAK OSOWILANGUN

Rp 156 Ribu/m2

Rp 2,49 Miliar

SEWA LAHAN LOKASI JL TAMBAK OSOWILANGUN DEKAT PELABUHAN TELUK LAMONG

 

Detail Properti

Transaksi

Sewa

Kamar Tidur

-

Kamar Mandi

-

Luas Tanah

16000 m2

Tipe Properti

Tanah

Alamat

JL TAMBAK OSOWILANGUN

Lokasi

Jawa Timur, Surabaya, Benowo

Listrik

-

Sertifikat

Lain-lain

Hadap

-

Group

Secondary

Furnish

-

Per m2

Rp 156,000 m2

Terdaftar Pada

09 Agustus 2025

ID Listing

041625-BRC00196

 

Keterangan

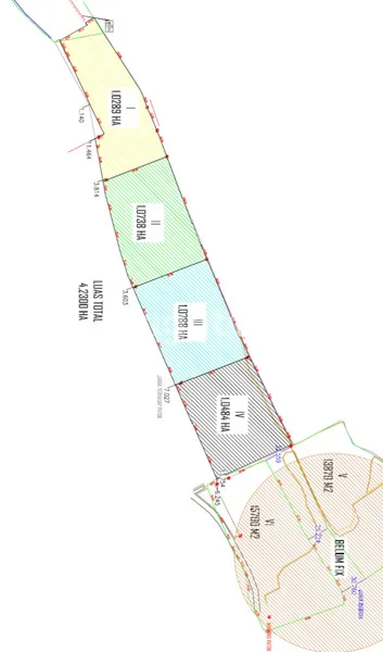
Sewa lahan lokasi jl tambak Osowilangun
Dekat pelabuhan teluk lamong

Lokasi I,II = paving
Luas 1.6 ha
Price 13rb/m2/ bln

Lokasi III = basecourse
Luas 0.8 ha
Price 11rb/m2/bulan

Lokasi IV,V,VI=limestone
Luas 4 ha
Price 7.5rb/m2/bulan

* Harga bs nego u jk panjang
* Harga termasuk PPH
* Min sewa 2000m2

foto-agen

CHRISTIAN (QWMT)

Brighton Champion

Citraland - Surabaya

Dengan klik tombol kontak, Pengguna setuju dengan Syarat Pengguna dan Kebijakan Privasi
Dengan klik tombol kontak, Pengguna setuju dengan Syarat Pengguna dan Kebijakan Privasi

Tertarik dengan Properti Ini?

Agent Image

CHRISTIAN (QWMT)

Siap Membantu!

Butuh bantuan jual, sewa, cari properti? Brighton siap membantu

Hubungi Customer Service Brigita