Menu

KPR
FAQ
 
 
 
Tanah

JUAL JL SABA GIANYAR

Rp 6,75 Juta/m2

Rp 77,88 Miliar

TANAH KAVLING PREMIUM DI PINGGIR PANTAI SABA GIANYAR BALI

 

Detail Properti

Transaksi

Jual

Kamar Tidur

-

Kamar Mandi

-

Luas Tanah

11538 m2

Tipe Properti

Tanah

Alamat

JL SABA GIANYAR

Lokasi

Bali, Gianyar, Saba

Listrik

-

Sertifikat

SHM

Hadap

-

Group

Primary

Furnish

Non-furnished

Ada Garasi

Ya

Per m2

Rp 6,750,043 m2

Terdaftar Pada

29 Juli 2025

ID Listing

291425-BRBP00046

 

Keterangan

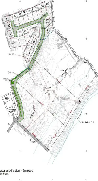
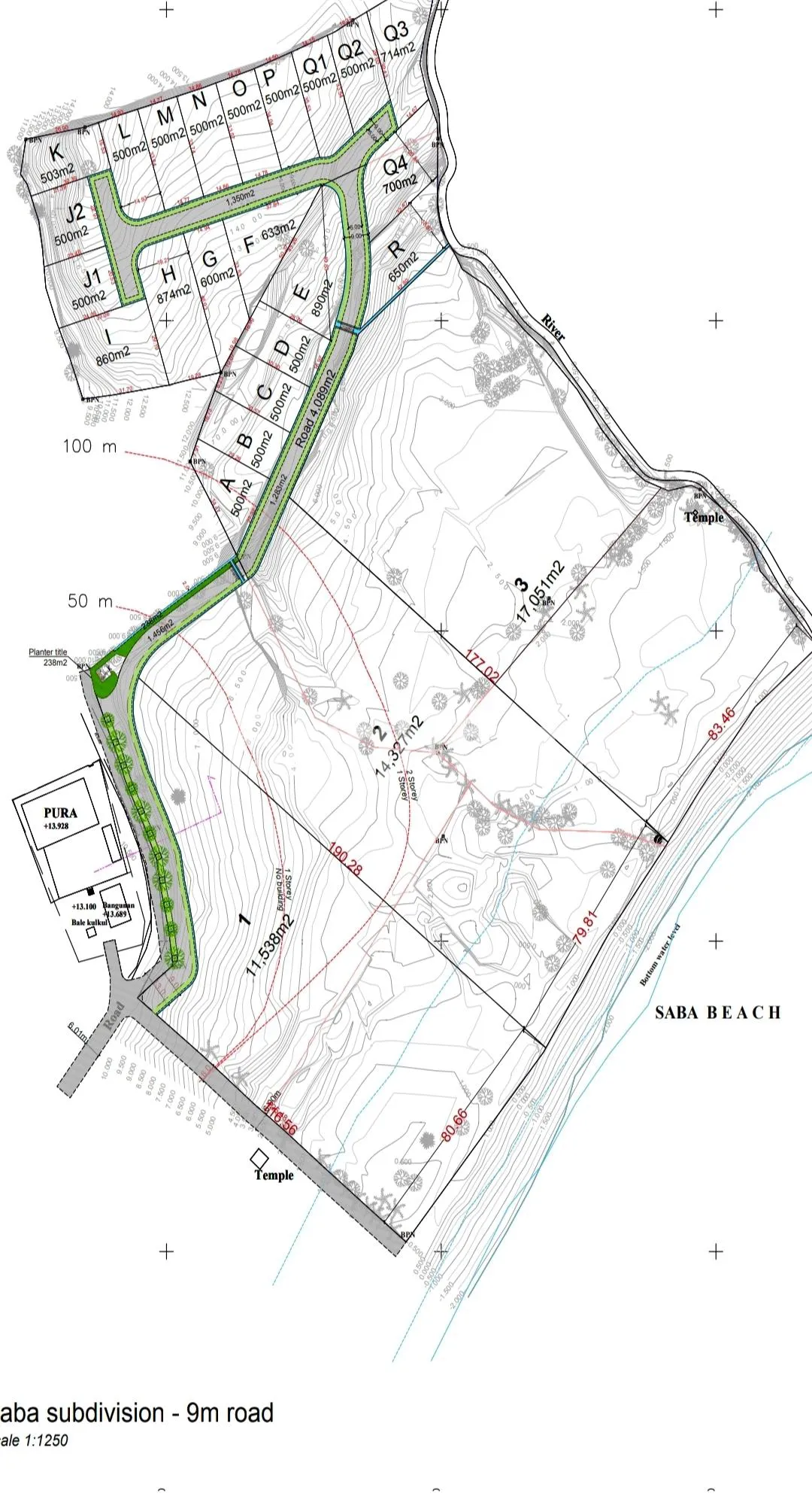
🌴 Tanah Kavling Premium di Pinggir Pantai Saba – Gianyar Bali
💥 Hanya 13 Unit Tersisa!

Nikmati investasi properti terbaik di kawasan eksklusif Pantai Saba, Gianyar – lokasi strategis dan bernilai tinggi, ideal untuk villa, bisnis hospitality, atau investasi jangka panjang.

📍 Lokasi:
Jl. Pantai Saba, Gianyar – hanya beberapa langkah ke bibir pantai!

📝 Spesifikasi Kavling:
▪️ Luas mulai dari: 5 are
▪️ Harga mulai dari: 625 juta/are
▪️ 13 unit tersedia: A, E, F, G, H, I, J1, J2, K, Q3, dan Plot 1, 2, 3
▪️ Jalan lebar: 9 meter (termasuk parit keliling)
▪️ Zona: Pink (Peruntukan Pariwisata dan Hunian)
▪️ Fasilitas:

Jaringan listrik bawah tanah

Saluran air PDAM

🌅 Kavling Istimewa – Plot Besar Tersedia:

Plot 1: Minimal ambil 1 hektar / 100 are, harga @800 juta/are

Plot 2 & 3: Minimal ambil 1 hektar, harga @780 juta/are

💼 Harga Sudah Termasuk:
✅ Sertifikat Hak Milik (SHM)
✅ PPN 11%
✅ Biaya Notaris 50%
✅ Biaya BPHTB

💳 Skema Pembayaran:
▪️ Cash atau Kredit Pemilikan Tanah (KPT)
▪️ KPT sementara hanya melalui Bank Panin
▪️ DP sampai pelunasan: 1,5 bulan

📌 Investasi di tepi pantai dengan legalitas aman, lokasi berkembang, dan fasilitas lengkap.

Segera hubungi kami untuk site visit dan informasi detail!
Unit Terbatas – First come, first served!



 

Simulasi Cicilan KPR

Harga Properti (Rp)

Rp 77,88 Miliar

Uang Muka (Rp)

%

Jangka Waktu

tahun

Suku Bunga

%

Jumlah Angsuran

per bulan
foto-agen

INTEN (YNYW)

Brighton Golden

Denpasar - Bali

Dengan klik tombol kontak, Pengguna setuju dengan Syarat Pengguna dan Kebijakan Privasi
Dengan klik tombol kontak, Pengguna setuju dengan Syarat Pengguna dan Kebijakan Privasi

Tertarik dengan Properti Ini?

Agent Image

INTEN (YNYW)

Siap Membantu!

Butuh bantuan jual, sewa, cari properti? Brighton siap membantu

Hubungi Customer Service Brigita