Menu

KPR
FAQ
 
 
 
Toko

SEWA JL RAYA BRAWA

Rp 220 Juta

OFFICE SPACE FOR RENT CENTRAL CANGGU BRAWA

 

Detail Properti

Transaksi

Sewa

Kamar Tidur

0

Kamar Mandi

1

Luas Tanah

1 m2

Luas Bangunan

63 m2

Tipe Properti

Toko

Alamat

JL RAYA BRAWA

Lokasi

Bali, Badung, Canggu

Listrik

5500 Watt

Sertifikat

SHM

Hadap

Barat

Group

Secondary

Furnish

Fully-furnished

Ada Garasi

Ya

Terdaftar Pada

29 Oktober 2025

ID Listing

252025-BRBP00002

 

Keterangan

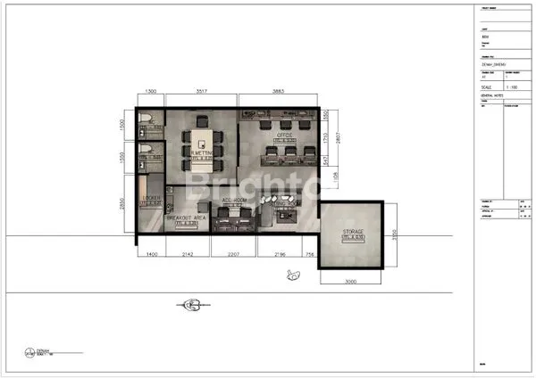
Disewakan: Ruang Kreatif di Central Berawa

Lokasi:
Hanya 5 menit ke Pantai Berawa – strategis dan mudah diakses

Ukuran & Tata Letak:
Kantor Utama: 9 m x 6 m (54 m²)
Gudang Luar: 3 m x 3 m (9 m²)
Total ruang yang bisa digunakan: 63 m²

Fasilitas:
Ruang Meeting + Resepsionis
Toilet dengan Area Loker
Area Kerja Bersama
Area Back of House
Gudang Dalam & Luar
Parkir: 1 mobil + 10 motor
Termasuk furnitur tetap (meja & laci)

Kelebihan:
Bisa langsung digunakan sebagai kantor “open key”
Fleksibel, dapat diubah menjadi toko sesuai kebutuhan

Toko menghadap ke timur, cocok untuk pencahayaan alami

Dekat dengan Pantai Berawa, ideal untuk bisnis kreatif, kafe, atau studio

Ketentuan Sewa:
Over kontrak 10
Minimal sewa 2 tahun
Harga: Rp 210.000.000 per tahun


Creative Space for Rent in Central Berawa
Location:
Just 5 minutes to Berawa Beach – convenient and easily accessible

Size & Layout:
Main Office: 9 m x 6 m (54 m²)
Outdoor Storage: 3 m x 3 m (9 m²)
Total Usable Space: 63 m²

Facilities:
Meeting Room + Reception
Toilet with Locker Area
Co-working Area
Back of House Area
Indoor & Outdoor Storage
Parking: 1 car + 10 motorcycles
Includes fixed furniture (desks & drawers)

Highlights:
Ready-to-use as an “open key” office
Flexible, can be converted into a retail shop
East-facing storefront – great natural lighting
Close to Berawa Beach, ideal for creative businesses, cafes, or studios

Lease Terms:
Over-contract 10
Minimum lease: 2 years

Price: IDR 225,000,000 per year


foto-agen

SURYANI (UWPU)

Brighton Paradise

Denpasar - Bali

Dengan klik tombol kontak, Pengguna setuju dengan Syarat Pengguna dan Kebijakan Privasi


Dengan klik tombol kontak, Pengguna setuju dengan Syarat Pengguna dan Kebijakan Privasi

Tertarik dengan Properti Ini?

Agent Image

SURYANI (UWPU)

Siap Membantu!

Butuh bantuan jual, sewa, cari properti? Brighton siap membantu

Hubungi Customer Service Brigita