Menu

KPR
FAQ
 
 
 
Rumah

JUAL JL. RAWA INDAH, ARIFIN AHMAD

Rp 750 Juta

RUMAH BARU 3KT DI RAWA INDAH ARIFIN AHMAD - SHM & KPR READY

 

Detail Properti

Transaksi

Jual

Kamar Tidur

3

Kamar Mandi

2

Luas Tanah

155 m2

Luas Bangunan

95 m2

Tipe Properti

Rumah

Alamat

JL. RAWA INDAH, ARIFIN AHMAD

Lokasi

Riau, Pekanbaru, Arifin Ahmad

Listrik

2200 Watt

Sertifikat

SHM

Hadap

Timur Laut

Group

Primary

Furnish

-

Ada Garasi

Ya

Terdaftar Pada

07 Januari 2026

ID Listing

061825-WDPE00007

 

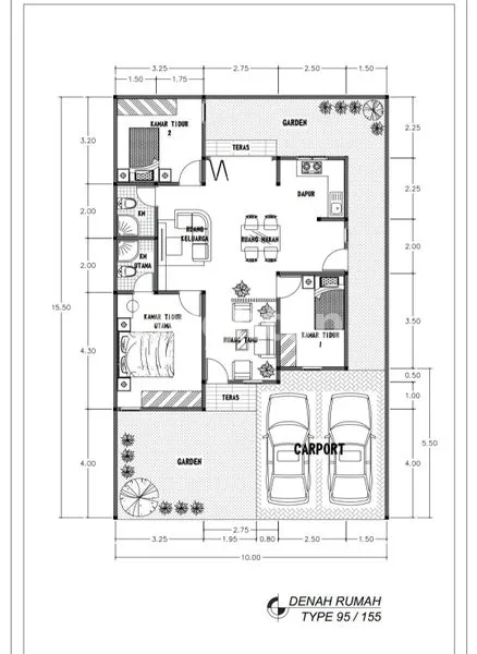
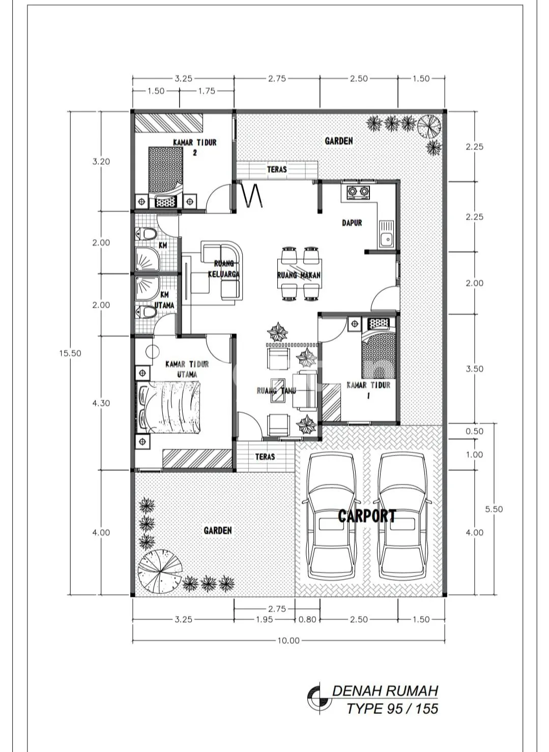
Keterangan

Hunian modern berlokasi strategis di Jalan Rawa Indah, Arifin Ahmad.

Spesifikasi
- Rumah 1 lantai dengan 3 kamar tidur dan 2 kamar mandi,
- Dibangun di atas lahan 155m² dengan luas bangunan 95m².
- Dilengkapi carport untuk 2 mobil, sumber air sumur, dan listrik 2200 watt.
- Status SHM lengkap dan bisa KPR.
- Menghadap timur laut dengan sirkulasi udara optimal.

Akses mudah ke pusat kota dan fasilitas umum. Cocok untuk keluarga muda yang menginginkan lingkungan nyaman dan berkembang. Harga terjangkau dengan berbagai kemudahan pembayaran.

 

Simulasi Cicilan KPR

Harga Properti (Rp)

Rp 750 Juta

Uang Muka (Rp)

%

Jangka Waktu

tahun

Suku Bunga

%

Jumlah Angsuran

per bulan

foto-agen

RIZAL SAYUTI (OWEE)

Brighton Wisdom

Pekanbaru - Riau

Dengan klik tombol kontak, Pengguna setuju dengan Syarat Pengguna dan Kebijakan Privasi


Dengan klik tombol kontak, Pengguna setuju dengan Syarat Pengguna dan Kebijakan Privasi

Tertarik dengan Properti Ini?

Agent Image

RIZAL SAYUTI (OWEE)

Siap Membantu!

Butuh bantuan jual, sewa, cari properti? Brighton siap membantu

Hubungi Customer Service Brigita