Menu

KPR
FAQ
 
 
 
Tanah

JUAL JL. PPA

Rp 7,41 Juta/m2

Rp 15,5 Miliar

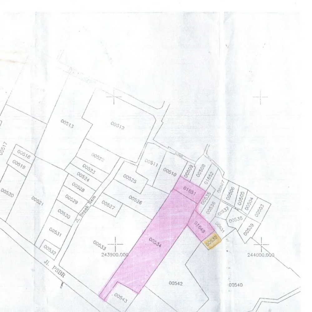
TANAH DI JL. PPA CIPAYUNG

 

Detail Properti

Transaksi

Jual

Kamar Tidur

-

Kamar Mandi

-

Luas Tanah

2089 m2

Tipe Properti

Tanah

Alamat

JL. PPA

Lokasi

DKI Jakarta, Jakarta Timur, Cipayung

Listrik

-

Sertifikat

SHM

Hadap

Barat Daya

Group

-

Furnish

-

Per m2

Rp 7,419,818 m2

Terdaftar Pada

04 Oktober 2025

ID Listing

042025-IFBS00004

 

Keterangan

Lokasi Bagus Di Cipayung Jakarta Timur
Sangat Cocok Untuk Dibuat Town House
Terlampir Gambar Setting Untuk 12 Kavling
Dekat pintu toll JORR Bambu Apus
Bebas banjir
Dekat Sekolah Negeri 24,51 & 58
Dekat Jakarta International Korean School
Lingkungan asri, tenang, aman dan nyaman
Madrasah Ibtidaiyah Swasta Al Wahyu

 

Simulasi Cicilan KPR

Harga Properti (Rp)

Rp 15,5 Miliar

Uang Muka (Rp)

%

Jangka Waktu

tahun

Suku Bunga

%

Jumlah Angsuran

per bulan
foto-agen

HENDRY (EPAF)

Brighton Infinite

Galaxy - Bekasi


foto-agen

TINA (CMZJ)

Brighton Infinite

Veteran - Bandung

Dengan klik tombol kontak, Pengguna setuju dengan Syarat Pengguna dan Kebijakan Privasi
Dengan klik tombol kontak, Pengguna setuju dengan Syarat Pengguna dan Kebijakan Privasi

Tertarik dengan Properti Ini?

Agent Image

HENDRY (EPAF)

Siap Membantu!

Butuh bantuan jual, sewa, cari properti? Brighton siap membantu

Hubungi Customer Service Brigita