Menu

KPR
FAQ
 
 
 
Gedung

SEWA JL. MAHENDRADATTA

Rp 600 Juta

GEDUNG SERBAGUNA & RUANG USAHA DI TENGAH KOTA, JL. MAHENDRADATTA, DENPASAR UTARA

 

Detail Properti

Transaksi

Sewa

Kamar Tidur

0

Kamar Mandi

3

Luas Tanah

835 m2

Luas Bangunan

900 m2

Tipe Properti

Gedung

Alamat

JL. MAHENDRADATTA

Lokasi

Bali, Denpasar, Mahendradata

Listrik

10000 Watt

Sertifikat

SHM

Hadap

Selatan

Group

Secondary

Furnish

Non-furnished

Ada Garasi

Ya

Terdaftar Pada

22 September 2025

ID Listing

221825-BRSE00020

 

Keterangan

Gedung Serbaguna & Ruang Usaha di Tengah Kota, Jl. Mahendradatta, Denpasar Utara

Gedung serbaguna yang bisa dimanfaatkan untuk berbagai jenis bisnis dan usaha. Bangunan ini dapat dimanfaatkan sebagai kantor, ruang usaha, kombinasi atau bisnis lainnya seperti klinik, gym, toko besar, showroom, atau lainnya. Bisnis atau usaha yang dapat memanfaatkan bangunan ini misal adalah semua jenis usaha yang memerlukan tempat yang cukup luas, bisnis retail besar, atau bisa juga untuk perusahaan skala besar.

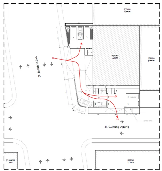
Letaknya yang berada di jalan strategis Mahendradatta memberi kemudahan akses kemanapun dengan jalan yang berukuran besar, sehingga memungkinkan mobilitas untuk berbagai jenis kendaraan ringan dan berat.

Letaknya di hook memberikan area parkir di depan dan samping gedung untuk beberapa mobil dan puluhan motor. Bangunan ini juga dapat diakses melalui jalan Gunung Agung, sehingga sangat fleksibel untuk pengaturan strategi keluar masuk.

Gedung 2 Lantai
LT: 835 m2
LB: 900 m2
Dimensi:
- Lebar: 27 m
- Panjang: 31 m

Listrik: 9900 Watt (total)
Non-Furnished
Air PDAM+Sumur Bor
Hadap: Hoek Selatan Barat

Akses:
- 1 menit ke Jl. Mahendradatta
- 5 menit ke Jl. Gatot Subroto
- 10 menit ke Lapangan Puputan

Harga Sewa: IDR 600 Juta/Tahun
Masa Sewa Min. 6 Tahun

Gedung yang berlokasi strategis dan memiliki potensi menguntungkan di masa depan!


foto-agen

PRI (RRSC)

Brighton Synergy

Denpasar - Bali

Dengan klik tombol kontak, Pengguna setuju dengan Syarat Pengguna dan Kebijakan Privasi


Dengan klik tombol kontak, Pengguna setuju dengan Syarat Pengguna dan Kebijakan Privasi

Tertarik dengan Properti Ini?

Agent Image

PRI (RRSC)

Siap Membantu!

Butuh bantuan jual, sewa, cari properti? Brighton siap membantu

Hubungi Customer Service Brigita