Menu

KPR
FAQ
 
 
 
Ruko

JUAL JALAN TANJUNG DUREN BARAT 5

Rp 2,75 Miliar

RUKO BARU TANJUNG DUREN BARAT HARGA: 2.750M (NEGO), PROMO INDENT: FREE UPGRADE FULL FURNISH DI LANTAI 1 (SENILAI 120JT)

 

Detail Properti

Transaksi

Jual

Kamar Tidur

5

Kamar Mandi

4

Luas Tanah

67 m2

Luas Bangunan

183 m2

Tipe Properti

Ruko

Alamat

JALAN TANJUNG DUREN BARAT 5

Lokasi

DKI Jakarta, Jakarta Barat, Tanjung Duren

Listrik

2200 Watt

Sertifikat

SHM

Hadap

Utara

Group

Primary

Furnish

Non-furnished

Ada Garasi

Ya

Terdaftar Pada

29 November 2025

ID Listing

172025-BRIM00001

 

Keterangan

Jl. Tanjung duren barat 5 no 43
[Detail data buka pdf]

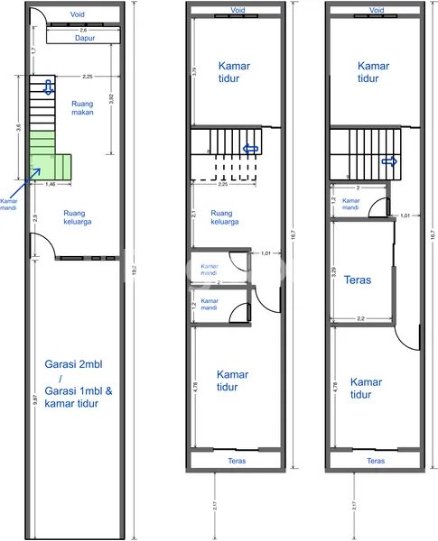
(uk. 3,5x19.2m) (Hanya Ada 4 unit)
(Row 3mbl, Bahu jalan 4mtr,
Garasi 3mbl, kamar di lt.1)

Harga: 2.750m (nego),
Promo indent: Free Upgrade Full Furnish di Lantai 1 (senilai 120jt)
Link download foto satuan:
https://www.dropbox.com/scl/fo/3mdcxiihi312tuml6y9fu/APNOsIqI0CZebcM4bh8_bCc?rlkey=a6dqdeegqk6qxqxofwshnrkh0&st=em0nxodu&dl=0

 

Simulasi Cicilan KPR

Harga Properti (Rp)

Rp 2,75 Miliar

Uang Muka (Rp)

%

Jangka Waktu

tahun

Suku Bunga

%

Jumlah Angsuran

per bulan

foto-agen

HENGKY (YCDQ)

Brighton Impact

Green Garden - Jakarta Barat


foto-agen

WAHYU WAWA (TJGX)

Brighton Impact

Green Garden - Jakarta Barat

Dengan klik tombol kontak, Pengguna setuju dengan Syarat Pengguna dan Kebijakan Privasi


Dengan klik tombol kontak, Pengguna setuju dengan Syarat Pengguna dan Kebijakan Privasi

Tertarik dengan Properti Ini?

Agent Image

HENGKY (YCDQ)

Siap Membantu!

Butuh bantuan jual, sewa, cari properti? Brighton siap membantu

Hubungi Customer Service Brigita