Menu

KPR
FAQ
 
 
 
Rumah

JUAL JALAN LIMBUNGAN

Rp 470 Juta

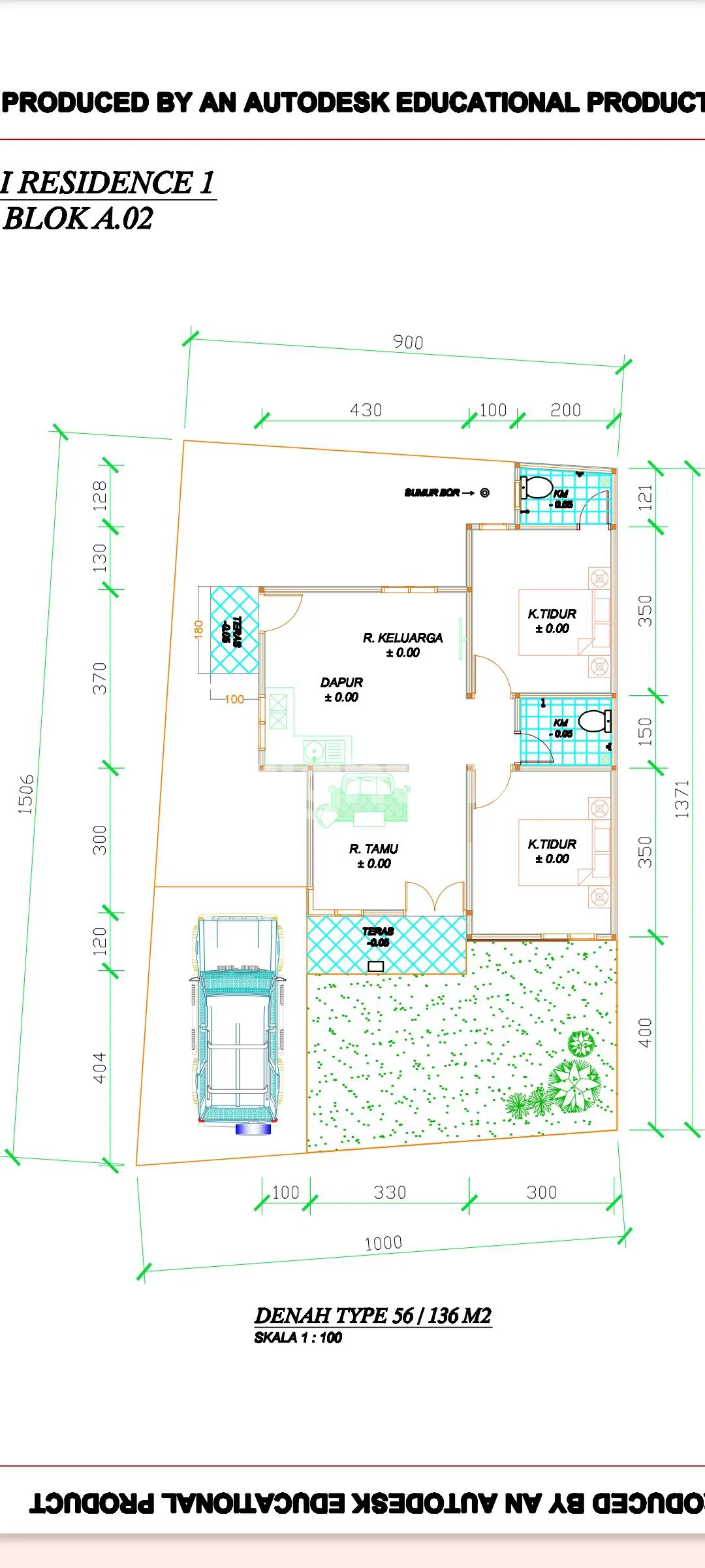
RUMAH INDENT DI RUMBAI, 2 KAMAR.

 

Detail Properti

Transaksi

Jual

Kamar Tidur

2

Kamar Mandi

2

Luas Tanah

136 m2

Luas Bangunan

70 m2

Tipe Properti

Rumah

Alamat

JALAN LIMBUNGAN

Lokasi

Riau, Pekanbaru, Rumbai

Listrik

1300 Watt

Sertifikat

SHM

Hadap

Timur

Group

Secondary

Furnish

Non-furnished

Ada Garasi

Ya

Terdaftar Pada

10 Januari 2026

ID Listing

100226-WDPE00005

 

Keterangan

rumah indent untuk keluarga baru

deskripsi:
luas tanah 136
2 kamar tidur
2 kamar mandi
tipe 70
listrik 1300
air sumur bor
hadap timur

lokasi rumbai

 

Simulasi Cicilan KPR

Harga Properti (Rp)

Rp 470 Juta

Uang Muka (Rp)

%

Jangka Waktu

tahun

Suku Bunga

%

Jumlah Angsuran

per bulan

foto-agen

EDY CHAN (UODJ)

Brighton Wisdom

Pekanbaru - Riau

Dengan klik tombol kontak, Pengguna setuju dengan Syarat Pengguna dan Kebijakan Privasi


Dengan klik tombol kontak, Pengguna setuju dengan Syarat Pengguna dan Kebijakan Privasi

Tertarik dengan Properti Ini?

Agent Image

EDY CHAN (UODJ)

Siap Membantu!

Butuh bantuan jual, sewa, cari properti? Brighton siap membantu

Hubungi Customer Service Brigita