Menu

KPR
FAQ
 
 
 
Rumah

JUAL JL GRIYA TAMAN AYU BANJAR ANYAR

Rp 305 Juta

RUMAH INDENT TABANAN KOTA SANGGULAN

 

Detail Properti

Transaksi

Jual

Kamar Tidur

2/3

Kamar Mandi

1

Luas Tanah

60 m2

Luas Bangunan

45 m2

Tipe Properti

Rumah

Alamat

JL GRIYA TAMAN AYU BANJAR ANYAR

Lokasi

Bali, Tabanan, Banjaranyar

Listrik

1300 Watt

Sertifikat

SHM

Hadap

Selatan

Group

Primary

Furnish

Non-furnished

Ada Garasi

Ya

Terdaftar Pada

23 Juli 2025

ID Listing

231425-BRBP00005

 

Keterangan

Lokasi perumahan di Banjar Dinas Jadi, Desa Banjar Anyar, Kediri, Tabanan.
Harga mulai Rp 305.000.000 - 526.000.000.
SHM dan IMB.
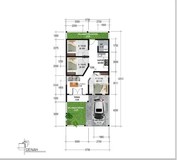
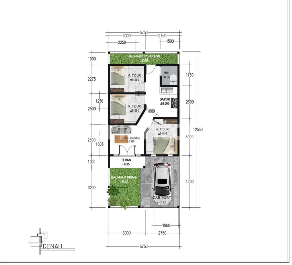
Spesifikasi Rumah :
- Kamar tidur 2/3
- Kamar mandi 1
- Dapur
- Ruang Tamu
- Teras
- Garasi Muat untuk 1 mobil dan 1 motor
- Luas Tanah : 60 - 100 m²
- Luas Bangunan : 45 m²
- Listrik : 1300 watt
- Sumber Air : PDAM

Lokasi masih dekat kota
12 menit ke kota tabanan
28 menit ke puspem badung
44 menit ke lapangan lumintang denpasar
46 menit ke pantai canggu
10 menit RSU TABANAN
11 menit ke Pasar Tabanan
10 menit ke sekolah Katolik Immaculata
8 menit ke SD Saraswati Tabanan
28 menit ke Poltek International Ball
37 menit ke Undira Dalung.

 

Simulasi Cicilan KPR

Harga Properti (Rp)

Rp 305 Juta

Uang Muka (Rp)

%

Jangka Waktu

tahun

Suku Bunga

%

Jumlah Angsuran

per bulan

foto-agen

VIRA (PJFQ)

Brighton Golden

Denpasar - Bali

Dengan klik tombol kontak, Pengguna setuju dengan Syarat Pengguna dan Kebijakan Privasi


Dengan klik tombol kontak, Pengguna setuju dengan Syarat Pengguna dan Kebijakan Privasi

Tertarik dengan Properti Ini?

Agent Image

VIRA (PJFQ)

Siap Membantu!

Butuh bantuan jual, sewa, cari properti? Brighton siap membantu

Hubungi Customer Service Brigita