Menu

KPR
FAQ
 
 
 
Rumah

JUAL JALAN BANGKA RAYA

Rp 33 Miliar

DIBAWAH NJOP - JL. BANGKA RAYA

 

Detail Properti

Transaksi

Jual

Kamar Tidur

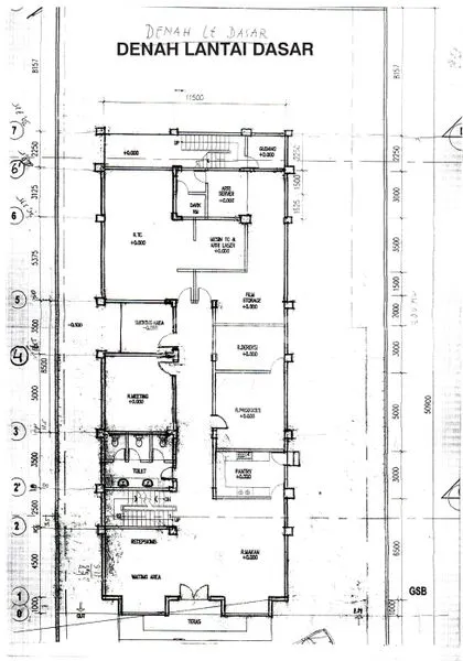
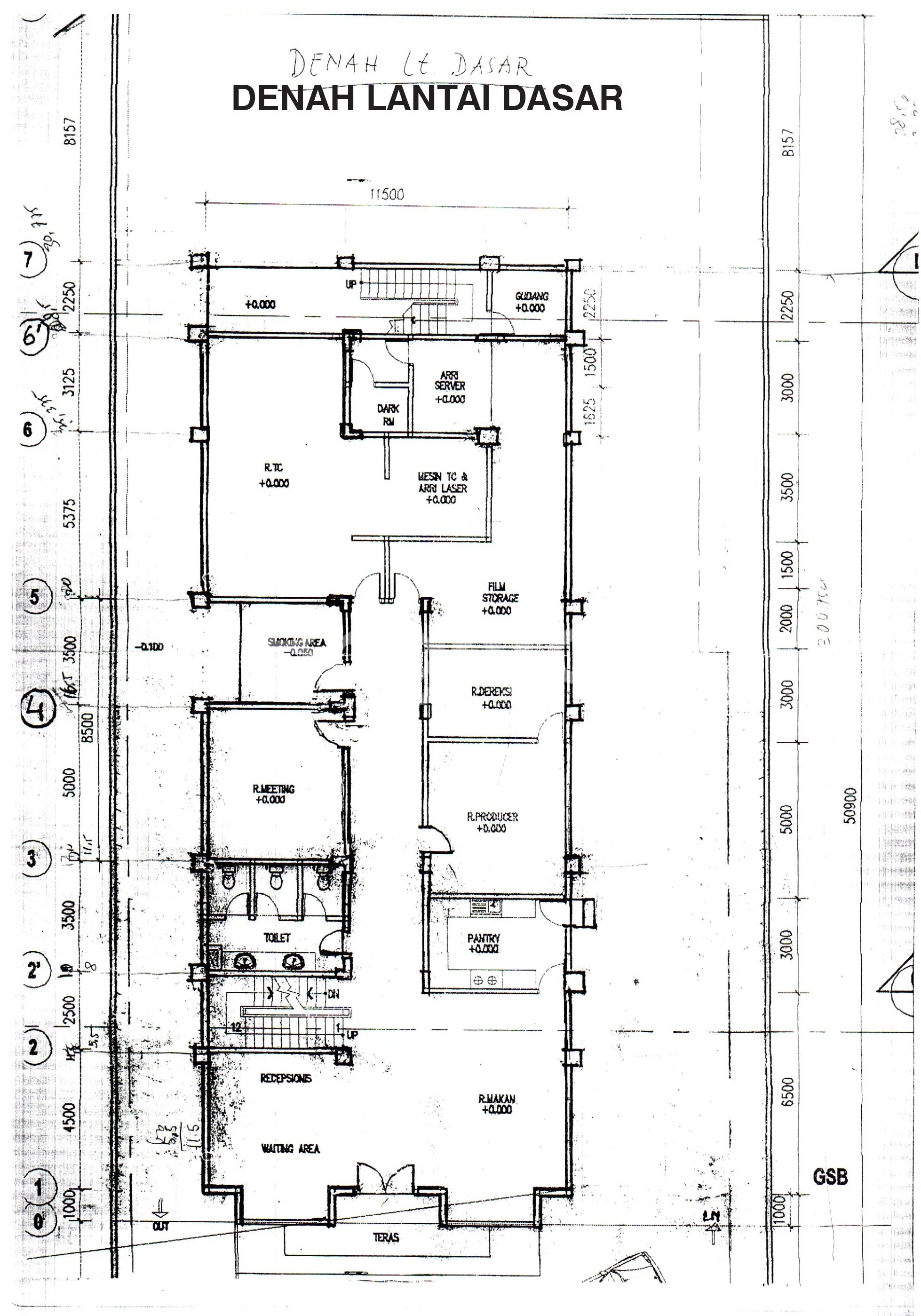
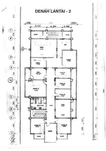
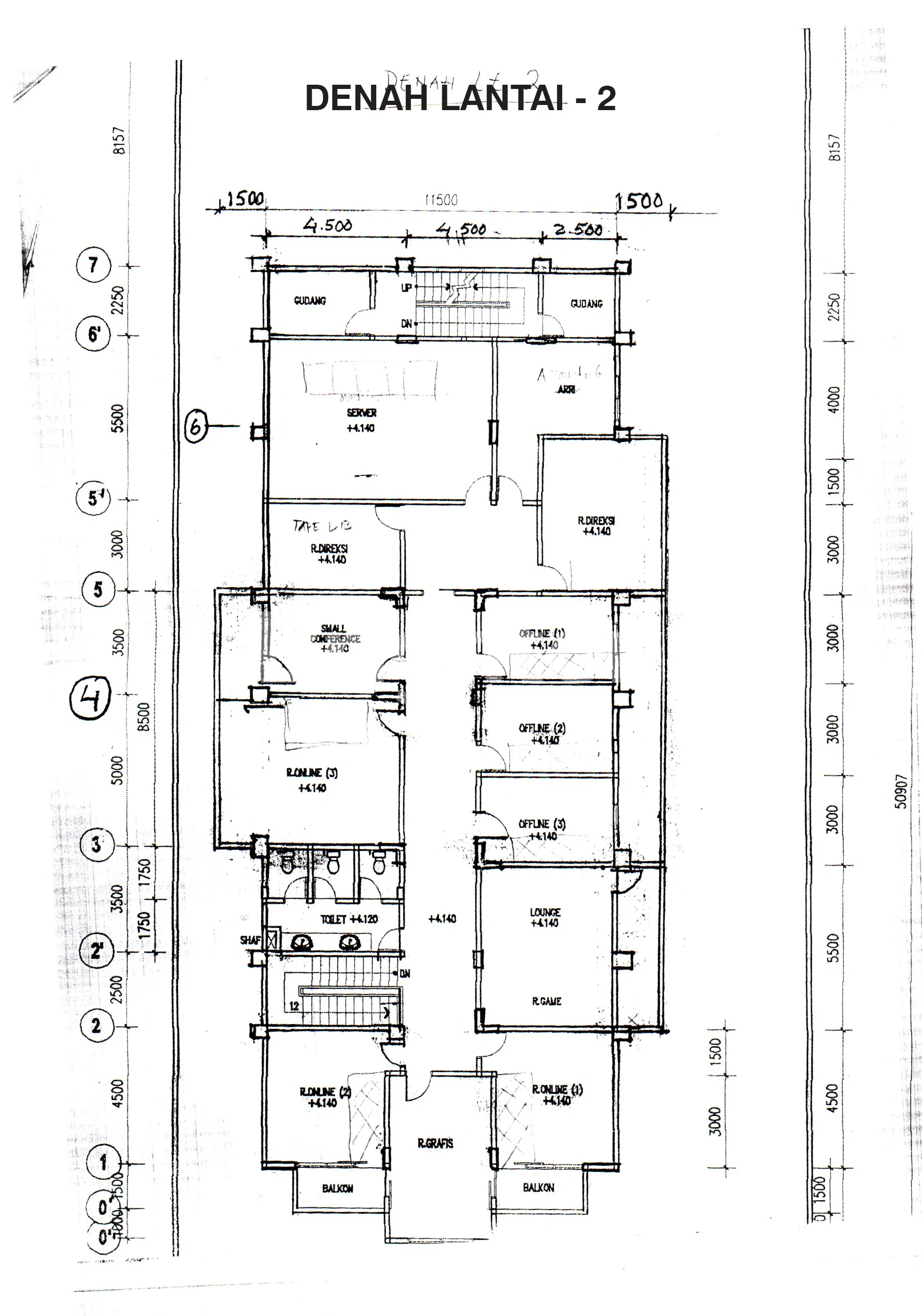
Lihat Denah

Kamar Mandi

Lihat Denah

Luas Tanah

1095 m2

Luas Bangunan

1511 m2

Tipe Properti

Rumah

Alamat

JALAN BANGKA RAYA

Lokasi

DKI Jakarta, Jakarta Selatan, Bangka

Listrik

53000 Watt

Sertifikat

SHM

Hadap

Utara

Group

Secondary

Furnish

Non-furnished

Terdaftar Pada

04 November 2025

ID Listing

071425-BRPRO00038

 

Keterangan

🏛️ DIJUAL DIBAWAH NJOP – PROPERTI PRESTISIUS DI JANTUNG BANGKA RAYA, JAKARTA SELATAN

📍 Jl. Bangka Raya, Pela Mampang – Aset Langka di Koridor Kemang

Sebuah properti megah dan berkelas di kawasan elite Jakarta Selatan, dengan luas tanah lebih dari 1.000 m² dan bangunan 3 lantai yang kokoh dan elegan. Sangat ideal untuk hunian pribadi mewah, kantor perwakilan, klinik premium, butik usaha, hingga co-working space eksklusif. Lokasinya strategis, mudah diakses dari Kemang, SCBD, TB Simatupang, dan Kuningan.

🔑 SPESIFIKASI UTAMA

Luas Tanah: 1.095 m²

Luas Bangunan: 1.511 m²

Dimensi Tanah: ± 21 × 51 m (bentuk agak ngantong – sangat menguntungkan secara feng shui)

Jumlah Lantai: 3 lantai (dengan fondasi kuat untuk 4 lantai)

Listrik: 55.000 VA

Sumber Air: PAM

Sertifikat: SHM – Sertifikat Hak Milik

Details Ruangan dapat dilihat di gambar denah



🏙️ KEUNGGULAN LOKASI

✅ Terletak di jalan utama Bangka Raya – akses lebar dan ramai
✅ Lingkungan premium di antara Kemang, Cipete, dan Mampang
✅ Hanya 3 menit ke Kemang, 10 menit ke SCBD
✅ Sekitar properti dipenuhi tempat makan populer, sekolah internasional, dan pusat kebugaran
✅ Cocok untuk berbagai fungsi: hunian mewah, kantor, galeri, klinik, hingga villa urban

💡 POTENSI PENGEMBANGAN

Properti ini memiliki nilai strategis tinggi dan potensi besar untuk dijadikan:

Kantor perwakilan / perusahaan asing

Konsulat atau embassy residence

Klinik kecantikan atau klinik medis modern

Hunian keluarga besar bergaya urban villa

Showroom brand fashion, interior, atau art gallery


📍 Lokasi: Jl. Bangka Raya, Jakarta Selatan
📞 Hubungi sekarang untuk jadwal survei

 

Simulasi Cicilan KPR

Harga Properti (Rp)

Rp 33 Miliar

Uang Muka (Rp)

%

Jangka Waktu

tahun

Suku Bunga

%

Jumlah Angsuran

per bulan

foto-agen

SANDY (RDWD)

Brighton Shine

Gading Serpong - Tangerang


foto-agen

LINA (RQJE)

Brighton Shine

Gading Serpong - Tangerang

Dengan klik tombol kontak, Pengguna setuju dengan Syarat Pengguna dan Kebijakan Privasi


Dengan klik tombol kontak, Pengguna setuju dengan Syarat Pengguna dan Kebijakan Privasi

Tertarik dengan Properti Ini?

Agent Image

SANDY (RDWD)

Siap Membantu!

Butuh bantuan jual, sewa, cari properti? Brighton siap membantu

Hubungi Customer Service Brigita