Menu

KPR
FAQ
 
 
 
Gudang

SEWA DAAN MOGOT RAYA

Rp 810 Juta

GUDANG DAAN MOGOT RAYA LOKASI STRATEGIS

 

Detail Properti

Transaksi

Sewa

Kamar Tidur

0

Kamar Mandi

2

Luas Tanah

15000 m2

Luas Bangunan

8059 m2

Tipe Properti

Gudang

Alamat

DAAN MOGOT RAYA

Lokasi

DKI Jakarta, Jakarta Barat, Daan Mogot

Listrik

1300 Watt

Sertifikat

SHM

Hadap

-

Group

-

Furnish

-

Terdaftar Pada

03 September 2025

ID Listing

031825-WDCK00010

 

Keterangan

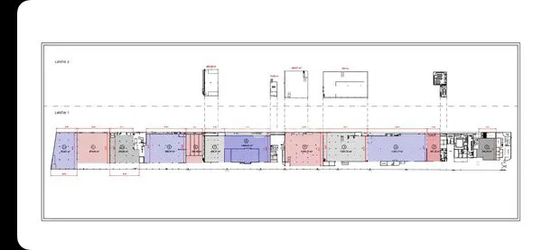
Disewakan Gudang Daan Mogot pinggir jalan raya
LT 15000
LB 8059

Harga sewa 54000/m2
Gudang sudah ada sekatan masing-masing
Listrik 1300 per gudang, upgrade sendiri oleh penyewa

Harga yang tertera adalah harga sewa per bulan. Bisa Sewa partial sesuai layout yang tertera di foto.


foto-agen

CAROLINE (DUIF)

Brighton Wisdom

Cengkareng - Jakarta Barat

Dengan klik tombol kontak, Pengguna setuju dengan Syarat Pengguna dan Kebijakan Privasi


Dengan klik tombol kontak, Pengguna setuju dengan Syarat Pengguna dan Kebijakan Privasi

Tertarik dengan Properti Ini?

Agent Image

CAROLINE (DUIF)

Siap Membantu!

Butuh bantuan jual, sewa, cari properti? Brighton siap membantu

Hubungi Customer Service Brigita