Menu

KPR
FAQ
 
 
 
image GUDANG CIKUPAMAS 2 LANTAI SUDAH EPOXY (1)
image GUDANG CIKUPAMAS 2 LANTAI SUDAH EPOXY (2)
Gudang

JUAL CIKUPAMAS 2

Rp 7 Juta

GUDANG CIKUPAMAS 2 LANTAI SUDAH EPOXY

 

Detail Properti

Transaksi

Jual

Kamar Tidur

-

Kamar Mandi

-

Luas Tanah

576 m2

Luas Bangunan

576 m2

Tipe Properti

Gudang

Alamat

CIKUPAMAS 2

Lokasi

Banten, Tangerang, Cikupa

Listrik

10000 Watt

Sertifikat

SHM

Hadap

-

Group

Secondary

Furnish

-

Terdaftar Pada

25 Desember 2025

ID Listing

232425-WDPK00002

 

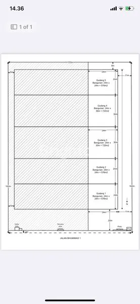
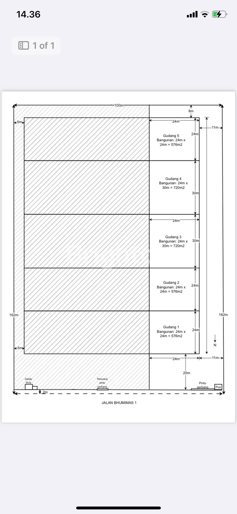
Keterangan

Jual Gudang Cikupamas 2

Bagian Dinding depan gedung sudah ada balok wf untuk persiapan kedepan apabila dibangun 2lt dan 3lt
Lantai juga sudah dilapisi epoxy
(Yang dijual gambar yang diarsir)

Jual 7jt/mtr exc ppn

 

Simulasi Cicilan KPR

Harga Properti (Rp)

Rp 7 Juta

Uang Muka (Rp)

%

Jangka Waktu

tahun

Suku Bunga

%

Jumlah Angsuran

per bulan

foto-agen

LILI HUANG (MGLN)

Brighton Wisdom

PIK - Jakarta Utara

Dengan klik tombol kontak, Pengguna setuju dengan Syarat Pengguna dan Kebijakan Privasi


Dengan klik tombol kontak, Pengguna setuju dengan Syarat Pengguna dan Kebijakan Privasi

Tertarik dengan Properti Ini?

Agent Image

LILI HUANG (MGLN)

Siap Membantu!

Butuh bantuan jual, sewa, cari properti? Brighton siap membantu

Hubungi Customer Service Brigita