Menu

KPR
FAQ
 
 
 
Rumah

JUAL CIBUBUR

Rp 495 Juta

RUMAH DIJUAL CIBUBUR

 

Detail Properti

Transaksi

Jual

Kamar Tidur

2

Kamar Mandi

1

Luas Tanah

72 m2

Luas Bangunan

72 m2

Tipe Properti

Rumah

Alamat

CIBUBUR

Lokasi

DKI Jakarta, Jakarta Timur, Cibubur

Listrik

1300 Watt

Sertifikat

SHM

Hadap

Utara

Group

Secondary

Furnish

Non-furnished

Terdaftar Pada

07 Januari 2026

ID Listing

272425-BRIM00027

 

Keterangan

Jual Cepat Rumah Siap Huni Bebas Banjir
Lokasi Samping Kota Wisata Cibubur

‌Harga : Rp 495.000.000

‌Spesifikasi Rumah :
Surat - Surat SHM & IMB
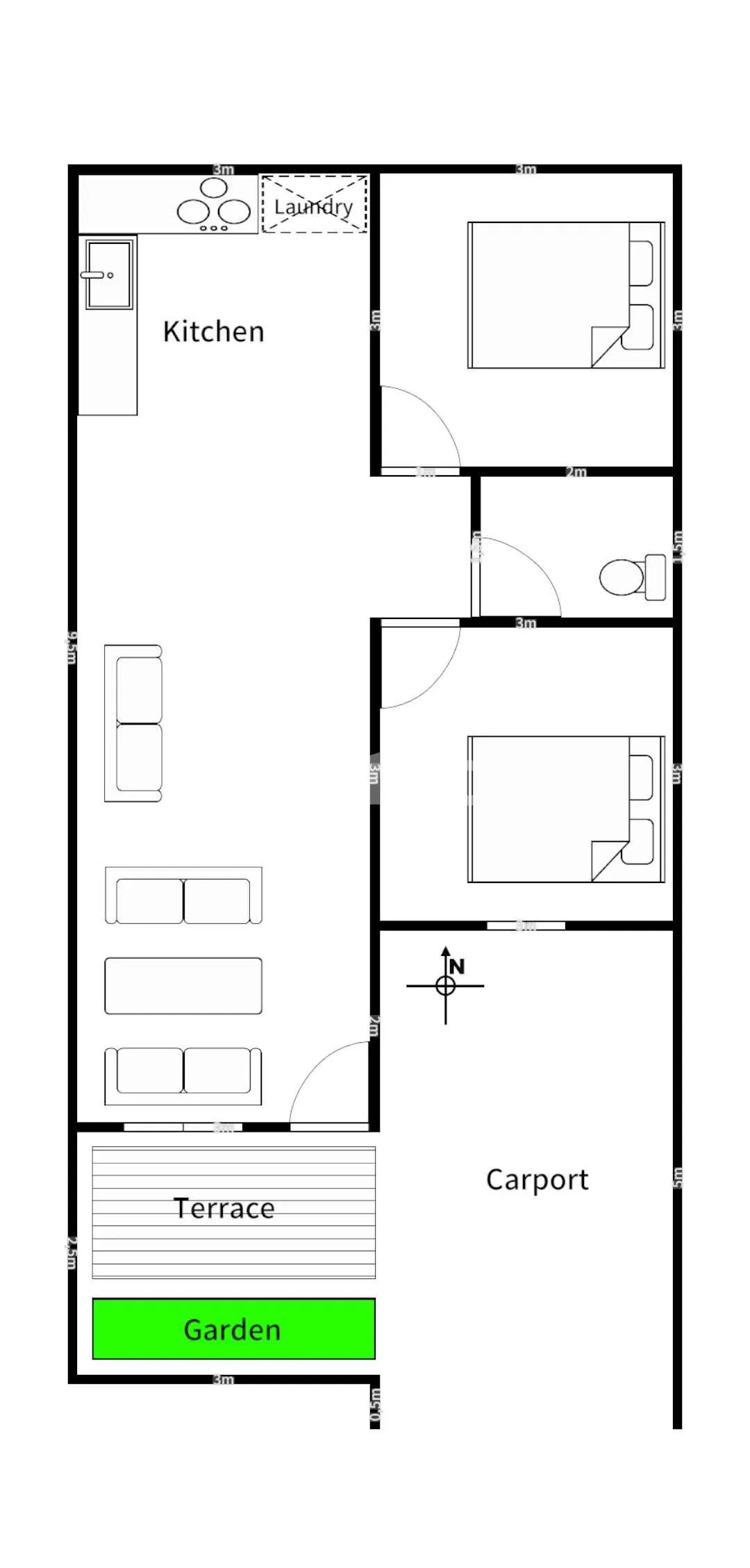
L. Tanah 72 m², L. Bangunan 72 m²
K.Tidur = 2, K. Mandi = 1
Listrik 1300 va, Air PAM
Dinding Batu Bata & Hebel
Genteng Beton + Baja Ringan
Plafond Gypsum + Rang Baja Ringan
Kusen Pintu & Jendela Kayu + Teralis
Lantai Keramik, Toilet Duduk
Carport Uk. 3m x 5m (1 Mobil + 2 Motor)
Teras Halaman Taman, Pagar Besi
Rumah Full Renovasi, Hadap Selatan

‌Fasilitas Cluster :
Gerbang Cluster 1 Pintu Keluar Masuk
Petugas Kebersihan Angkut Sampah
Security 24 Jam Standby
Jalan Cluster Lebar 5 m (2 Mobil)

‌Fasilitas Perumahan :
Alfa/Indomart, Superindo, Perbankan
Pertokoan Pangan Sandang Papan
Paud - SMA, Bimbel NF & Kumon
Klinik 24 Jam, Apotek, Salon/Barbershop
Masjid, Gedung Serbaguna, Foodcourt
Joging Track, Kolam Renang, Gym
Lap. Basket, Futsal, Tenis, Badminton, dll.

‌Pusat perbelanjaan :
Mall Living World Kota Wisata
Metropolitan Mall Cileungsi
Mall Ciputra Cibubur
Transmart Mall Cibubur
Cibubur Junction

‌Faskes Terdekat :
RS. Eka Hospital Kota Wisata
RS. M.H. Thamrin Cileungsi
RS. Hermina Mekarsari
RS. Mitra Keluarga Cibubur
RS. Permata Cibubur

‌Akses Perumahan :
Gerbang Utama Jalan Raya Narogong
Tol Narogong Cileungsi (10 menit)
Tol Kota Wisata (10 menit)

‌Note :
Cash/KPR Boleh

 

Simulasi Cicilan KPR

Harga Properti (Rp)

Rp 495 Juta

Uang Muka (Rp)

%

Jangka Waktu

tahun

Suku Bunga

%

Jumlah Angsuran

per bulan

foto-agen

KURNIA (KXDH)

Brighton Impact

Green Garden - Jakarta Barat

Dengan klik tombol kontak, Pengguna setuju dengan Syarat Pengguna dan Kebijakan Privasi


Dengan klik tombol kontak, Pengguna setuju dengan Syarat Pengguna dan Kebijakan Privasi

Tertarik dengan Properti Ini?

Agent Image

KURNIA (KXDH)

Siap Membantu!

Butuh bantuan jual, sewa, cari properti? Brighton siap membantu

Hubungi Customer Service Brigita