Menu

KPR
FAQ
 
 
 
Rumah

JUAL CENDANA ESSENCE LIPPO KARAWACI

Rp 1,15 Miliar

HUNIAN STRATEGIS 2 KT DI CENDANA ESSENCE, LIPPO KARAWACI

 

Detail Properti

Transaksi

Jual

Kamar Tidur

2

Kamar Mandi

2

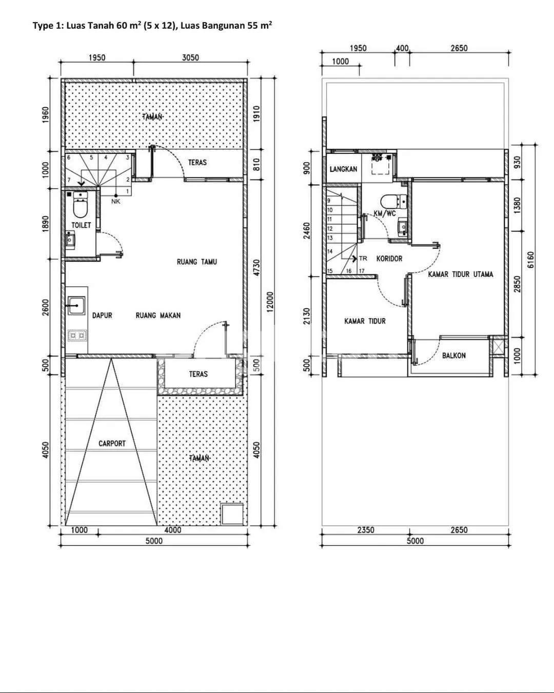
Luas Tanah

60 m2

Luas Bangunan

55 m2

Tipe Properti

Rumah

Alamat

CENDANA ESSENCE LIPPO KARAWACI

Lokasi

Banten, Tangerang, Lippo Karawaci

Listrik

2200 Watt

Sertifikat

PPJB

Hadap

Utara

Group

Secondary

Furnish

Non-furnished

Ada Garasi

Ya

Terdaftar Pada

03 Januari 2026

ID Listing

020226-WRKR00001

 

Keterangan

Rumah baru strategis di Cendana Essence, Lippo Karawaci. Luas tanah 60 m², bangunan 55 m², 2 kamar tidur, 2 kamar mandi, 2 lantai. Lokasi sangat dekat pusat kuliner, mall, rumah sakit, dan tol. Siap huni, harga nego sampai deal

 

Simulasi Cicilan KPR

Harga Properti (Rp)

Rp 1,15 Miliar

Uang Muka (Rp)

%

Jangka Waktu

tahun

Suku Bunga

%

Jumlah Angsuran

per bulan

foto-agen

ANTON (XWHX)

Brighton Warrior

Karawaci - Tangerang

Dengan klik tombol kontak, Pengguna setuju dengan Syarat Pengguna dan Kebijakan Privasi


Dengan klik tombol kontak, Pengguna setuju dengan Syarat Pengguna dan Kebijakan Privasi

Tertarik dengan Properti Ini?

Agent Image

ANTON (XWHX)

Siap Membantu!

Butuh bantuan jual, sewa, cari properti? Brighton siap membantu

Hubungi Customer Service Brigita