Menu

KPR
FAQ
 
 
 
Rumah

JUAL BINTANG LORONG

Rp 800 Juta

RUMAH 2 LANTAI ASRI DI PINRANG, LINGKUNGAN NYAMAN

 

Detail Properti

Transaksi

Jual

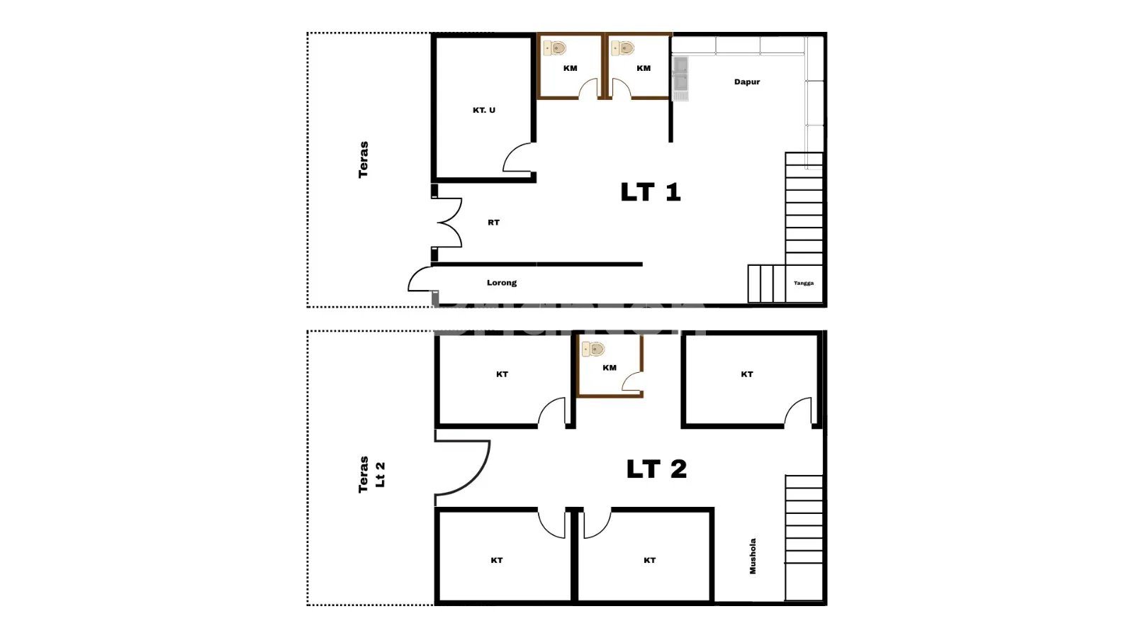
Kamar Tidur

5

Kamar Mandi

3

Luas Tanah

112 m2

Luas Bangunan

224 m2

Tipe Properti

Rumah

Alamat

BINTANG LORONG

Lokasi

Sulawesi Selatan, Pinrang, Paleteang

Listrik

2200 Watt

Sertifikat

Lain-lain

Hadap

Utara

Group

Secondary

Furnish

Non-furnished

Ada Garasi

Ya

Terdaftar Pada

06 November 2025

ID Listing

261825-WNMK00001

 

Keterangan

Rumah 2 lantai yang asri di Pinrang dengan 5 kamar tidur dan 3 kamar mandi. Bangunan seluas 224m² di atas tanah 112m². Menghadap utara, dilengkapi garasi untuk 2 mobil. Lingkungan pedesaan yang nyaman dengan akses mudah ke sekolah, masjid, dan jalan utama. Tersedia sumber air sumur dan listrik 2200 watt. Cocok untuk keluarga besar yang menginginkan suasana kekeluargaan yang kental. Status sertifikat lengkap dan bisa KPR.

 

Simulasi Cicilan KPR

Harga Properti (Rp)

Rp 800 Juta

Uang Muka (Rp)

%

Jangka Waktu

tahun

Suku Bunga

%

Jumlah Angsuran

per bulan

foto-agen

LISA (SSUN)

Brighton Winner

Makassar - Sulawesi Selatan

Dengan klik tombol kontak, Pengguna setuju dengan Syarat Pengguna dan Kebijakan Privasi


Dengan klik tombol kontak, Pengguna setuju dengan Syarat Pengguna dan Kebijakan Privasi

Tertarik dengan Properti Ini?

Agent Image

LISA (SSUN)

Siap Membantu!

Butuh bantuan jual, sewa, cari properti? Brighton siap membantu

Hubungi Customer Service Brigita