Menu

KPR
FAQ
 
 
 
Gudang

JUAL BANJARAN

Rp 8 Miliar

BANGUNAN USAHA STRATEGIS DEKAT TELKOM UNIVERSITY (4 MENIT 850 M)

 

Detail Properti

Transaksi

Jual

Kamar Tidur

-

Kamar Mandi

-

Luas Tanah

1386 m2

Luas Bangunan

1000 m2

Tipe Properti

Gudang

Alamat

BANJARAN

Lokasi

Jawa Barat, Bandung, Dayeuhkolot

Listrik

2200 Watt

Sertifikat

SHM

Hadap

Utara Timur

Group

Secondary

Furnish

-

Terdaftar Pada

16 Desember 2025

ID Listing

162025-WNBD00111

 

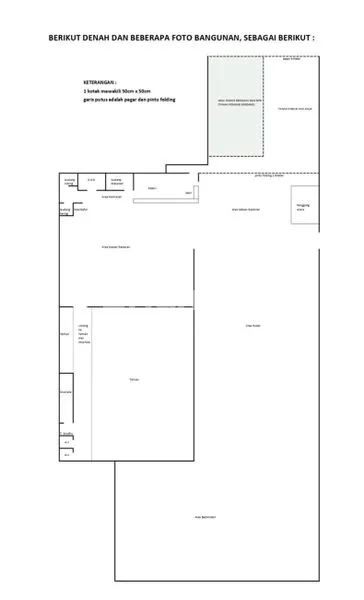
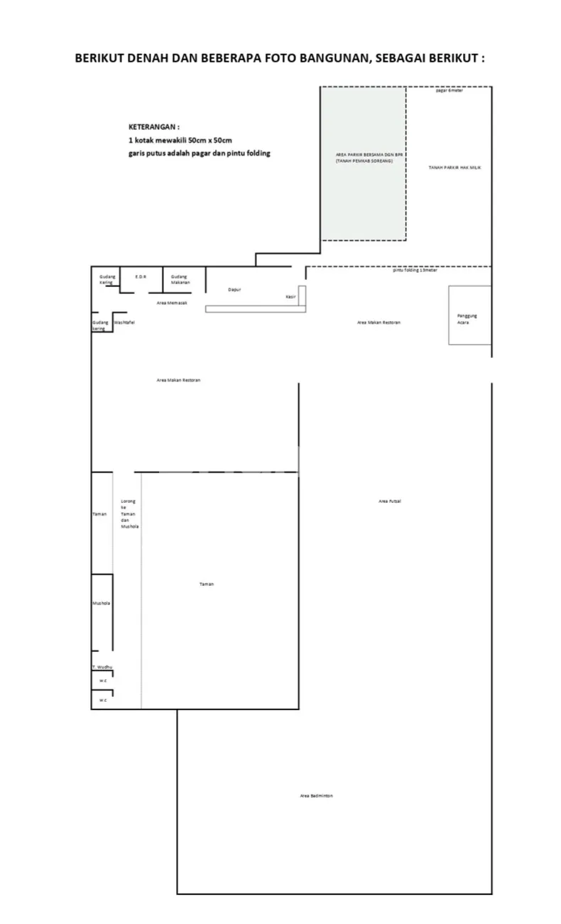
Keterangan

Bangunan Usaha Strategis Dekat TELKOM UNIVERSITY (4 Menit 850 m)

Cocok dijadikan: GOR, Gudang, Restoran/Pujasera

SPESIFIKASI:
✅ LEBAR MUKA : 6 meter
✅ LUAS TANAH : 1.386 m2 (6 SHM)
✅ LISTRIK : 3 meteran @2.200 watt ( 1 phase )
✅ AIR : SUMUR
✅ KM=2
✅ FUNGSI RUANGAN : 1 AREA PARKIR,1 AREA SALES DEPAN,1 AREA SALES DALAM,1 GUDANG UTAMA,1 GUDANG KOTOR,1 KANTOR,1 MUSHOLA,1 DAPUR, 1 RUANG KARYAWAN, 1 AREA FUTSAL, 1 AREA BADMINTON, 1 AREA TAMAN RUSA, 1 AREA TAMAN BURUNG


SEGERA ATUR JADWAL SURVEY DAN DAPATKAN HARGA TERBAIK BERSAMA KAMI

 

Simulasi Cicilan KPR

Harga Properti (Rp)

Rp 8 Miliar

Uang Muka (Rp)

%

Jangka Waktu

tahun

Suku Bunga

%

Jumlah Angsuran

per bulan

foto-agen

JESSY KYO (UGVP)

Brighton Winner

Veteran - Bandung

Dengan klik tombol kontak, Pengguna setuju dengan Syarat Pengguna dan Kebijakan Privasi


Dengan klik tombol kontak, Pengguna setuju dengan Syarat Pengguna dan Kebijakan Privasi

Tertarik dengan Properti Ini?

Agent Image

JESSY KYO (UGVP)

Siap Membantu!

Butuh bantuan jual, sewa, cari properti? Brighton siap membantu

Hubungi Customer Service Brigita