Menu

KPR
FAQ
 
 
 
Villa

SEWA TAMAN WISATA ALAM GUNUNG TUNAK LOMBOK TENGAH NTB

Rp 17 Juta

VILLA DI LOMBOK TENGAH NUSA TENGGARA BARAT

 

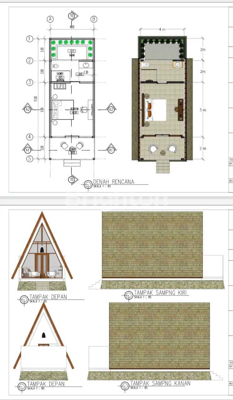
Detail Properti

Transaksi

Sewa

Kamar Tidur

1

Kamar Mandi

1

Luas Tanah

150 m2

Luas Bangunan

44 m2

Tipe Properti

Villa

Alamat

TAMAN WISATA ALAM GUNUNG TUNAK LOMBOK TENGAH NTB

Lokasi

Nusa Tenggara Barat, Lombok Tengah, Pujut

Listrik

2200 Watt

Sertifikat

HGB

Hadap

-

Group

-

Furnish

-

Terdaftar Pada

01 September 2025

ID Listing

011825-GDBS00031

 

Keterangan

Di Sewa Villa Swakelola selama 45 Tahun.
Luas Bangunan 44m2, Luas Tanah 150m2, Full Furnished, Shower Air Panas dan Dingin.
1. Lokasi PARIWISATA TAMAN WISATA ALAM GUNUNG TUNAK Lombok Tengah NTB, melewati By Pass baru dari BIL sepanjang 17 km ( 15 menit ) dan 12 km Aspal Hotmix ( 15 menit ) menuju lokasi.
2. Ijin usaha Penyedia Sarana Wisata Alam Sejak Agustus 2016 s/d Agustus 2071 dan dapat diperpanjang 20 Tahun, Desain Fisik ( IMB ), Desain Site Plant, UKL dan UPL.
3. Potensi : 12 km dari Circuit Moto GP MANDALIKA, Didepan Spot Surfing ( Don Don Surfing Lombok ), 700 m Terdapat Butterfly Learning Centre dan Taman kupu kupu, Lokasi Clif Jump, Spot Snorkling dan Fishing.
4. Bentuk Kerja Sama Terbuka dan Fleksible dengan prinsip saling menguntungkan.
5. Dukungan dari Masyarakat dan Pemerintah Daerah untuk menyediakan Akomodasi yang baik dan Resort Berbintang untuk menyambut tamu Moto GP dan Event lainnya dengan Schedule 4 sampai 5 Event tiap tahun.
6. Sudah tersedia PLN dan Akses Jalan Hotmix menuju lokasi, lokasi merupakan Daerah Penyangga terdekat yang memiliki potensi alam yang indah.
7. Perijinan Usaha Wisata Alam dari mentri KLH dan BKPM Pusat.


foto-agen

EKO (LBAK)

Brighton Gading

Galaxy - Bekasi

Dengan klik tombol kontak, Pengguna setuju dengan Syarat Pengguna dan Kebijakan Privasi


Dengan klik tombol kontak, Pengguna setuju dengan Syarat Pengguna dan Kebijakan Privasi

Tertarik dengan Properti Ini?

Agent Image

EKO (LBAK)

Siap Membantu!

Butuh bantuan jual, sewa, cari properti? Brighton siap membantu

Hubungi Customer Service Brigita