Menu

KPR
FAQ
 
 
 
image RUMAH 2 LANTAI DI RAWA LUMBU  BEKASI TIMUR (1)
image RUMAH 2 LANTAI DI RAWA LUMBU  BEKASI TIMUR (2)
Rumah

JUAL JATI BARAT BOJONG MENTENG

Rp 650 Juta

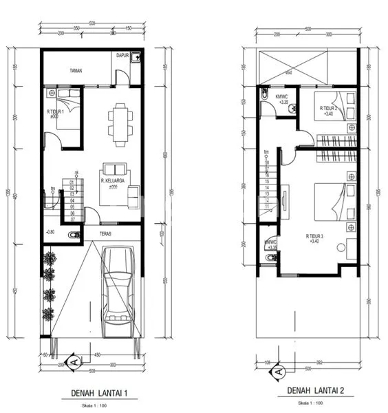
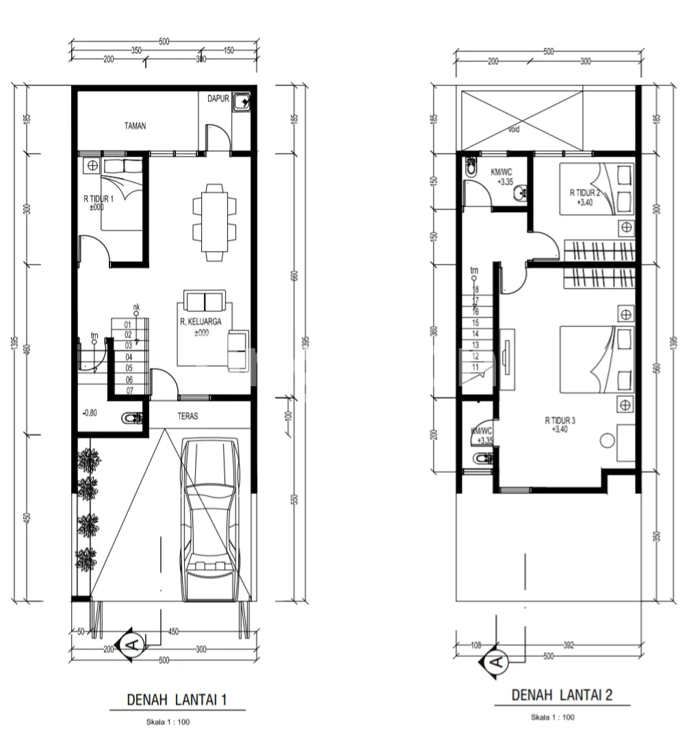
RUMAH 2 LANTAI DI RAWA LUMBU BEKASI TIMUR

 

Detail Properti

Transaksi

Jual

Kamar Tidur

3

Kamar Mandi

2

Luas Tanah

68 m2

Luas Bangunan

85 m2

Tipe Properti

Rumah

Alamat

JATI BARAT BOJONG MENTENG

Lokasi

Jawa Barat, Bekasi, Rawalumbu

Listrik

2200 Watt

Sertifikat

SHM

Hadap

-

Group

-

Furnish

-

Terdaftar Pada

01 Agustus 2025

ID Listing

011625-GDBS00011

 

Keterangan

Rumah Inden
Proses Bangun 5 Bulan
Lokasi Padat Pemukiman
15 Menit Tol Bekasi Timur
Dekat dengan sekolah Unggulan
Tidak Banjir

 

Simulasi Cicilan KPR

Harga Properti (Rp)

Rp 650 Juta

Uang Muka (Rp)

%

Jangka Waktu

tahun

Suku Bunga

%

Jumlah Angsuran

per bulan

foto-agen

RAHMAT (PRK)

Brighton Gading

Galaxy - Bekasi

Dengan klik tombol kontak, Pengguna setuju dengan Syarat Pengguna dan Kebijakan Privasi


Dengan klik tombol kontak, Pengguna setuju dengan Syarat Pengguna dan Kebijakan Privasi

Tertarik dengan Properti Ini?

Agent Image

RAHMAT (PRK)

Siap Membantu!

Butuh bantuan jual, sewa, cari properti? Brighton siap membantu

Hubungi Customer Service Brigita