Menu

KPR
FAQ
 
 
 
Tanah

JUAL JETIS BUMIJO

Rp 23,52 Juta/m2

Rp 38,7 Miliar

TANAH UNTUK HOTEL DI YOGYA

 

Detail Properti

Transaksi

Jual

Kamar Tidur

-

Kamar Mandi

-

Luas Tanah

1645 m2

Tipe Properti

Tanah

Alamat

JETIS BUMIJO

Lokasi

Daerah Istimewa Yogyakarta, Yogyakarta, Jetis

Listrik

-

Sertifikat

HGB

Hadap

-

Group

Secondary

Furnish

-

Per m2

Rp 23,525,836 m2

Terdaftar Pada

09 Agustus 2025

ID Listing

131025-PRSR00023

 

Keterangan

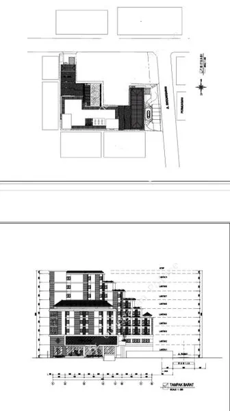
Tanah HGB atas nama PT Swasta
Luas Tanah 1.645 m2
Lebar 40 meter
Design dan ijin awal nya untuk di bangun Hotel dan Condotel di Kota Yogyakarta.
Bisa untuk Gedung Perkantoran

 

Simulasi Cicilan KPR

Harga Properti (Rp)

Rp 38,7 Miliar

Uang Muka (Rp)

%

Jangka Waktu

tahun

Suku Bunga

%

Jumlah Angsuran

per bulan
foto-agen

WIJAYA LIEM (YXFG)

Brighton Priority

Dr. Cipto - Semarang

Dengan klik tombol kontak, Pengguna setuju dengan Syarat Pengguna dan Kebijakan Privasi
Dengan klik tombol kontak, Pengguna setuju dengan Syarat Pengguna dan Kebijakan Privasi

Tertarik dengan Properti Ini?

Agent Image

WIJAYA LIEM (YXFG)

Siap Membantu!

Butuh bantuan jual, sewa, cari properti? Brighton siap membantu

Hubungi Customer Service Brigita